Odkryj projekt domu Point 140 (137,23 m²) – perłę w kolekcji Danwood, gdzie nowoczesna architektura łączy się z niezwykłą elastycznością i komfortem życia. Ten energooszczędny dom półtorakondygnacyjny, zwieńczony dachem dwuspadowym o klasycznym nachyleniu 30° i z imponująco wysoką ścianką kolankową (1,75 m), to idealna propozycja dla rodzin ceniących sobie zarówno otwartą przestrzeń dzienną, jak i możliwość aranżacji sypialni na parterze.
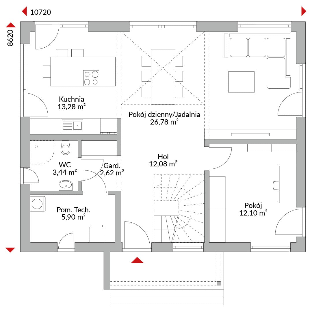
Parter domu Point 140 to serce Twojego domowego ogniska. Przestronny salon, połączony z jadalnią oraz otwartą kuchnią, tworzy jasną i przyjazną strefę idealną do wspólnego spędzania czasu. Wyjątkowym atutem tego projektu domu jest dodatkowa sypialnia zlokalizowana na parterze, która może służyć jako komfortowy pokój gościnny, gabinet lub główna sypialnia dla osób ceniących wygodę bez schodów. Funkcjonalność parteru podkreślają również wygodna toaleta (WC) oraz niezbędne pomieszczenie techniczne.
Poddasze, dzięki bardzo wysokiej ściance kolankowej, oferuje pełnowymiarową przestrzeń z pozostałymi trzema pokojami (łącznie pięć pokoi w całym domu), które możesz zaaranżować jako przytulne sypialnie, pokoje dla dzieci czy strefę hobby. Komfort na tym poziomie zapewnia duża, rodzinna łazienka oraz praktyczna garderoba.
Wybierając projekt domu Point 140, inwestujesz w gotowy projekt domu od Danwood, który wyróżnia się inteligentnym planowaniem i możliwością adaptacji do indywidualnych potrzeb. To nowoczesny dom z poddaszem dla ludzi ceniących jakość, elastyczność i energooszczędne rozwiązania.
Co wyróżnia projekt Point 140?
Zdjęcia mogą przedstawiać budynek z indywidualnymi zmianami.
Standard domu Today
Pełny opis budowy i specyfikacja materiałowa.

Rzuty
Kompletny plan wszystkich kondygnacji z metrażem

Dzięki temu, że wybraliśmy dom Danwood, zyskaliśmy czas dla rodziny. Nie musimy go spędzać na budowie, możemy się cieszyć naszym domem.