Zanurz się w świecie elegancji i funkcjonalności z projektem domu Perfect 161 (161,21 m²) – wyjątkowym bungalowem od Danwood, który oferuje niezrównaną przestrzeń i komfort życia na jednym poziomie. Ten energooszczędny dom parterowy, zwieńczony klasycznym dachem dwuspadowym o nachyleniu 22°, to idealna propozycja dla dużych rodzin lub osób ceniących sobie przestronne wnętrza i luksusowe rozwiązania, w tym zadaszone wyjście na taras.
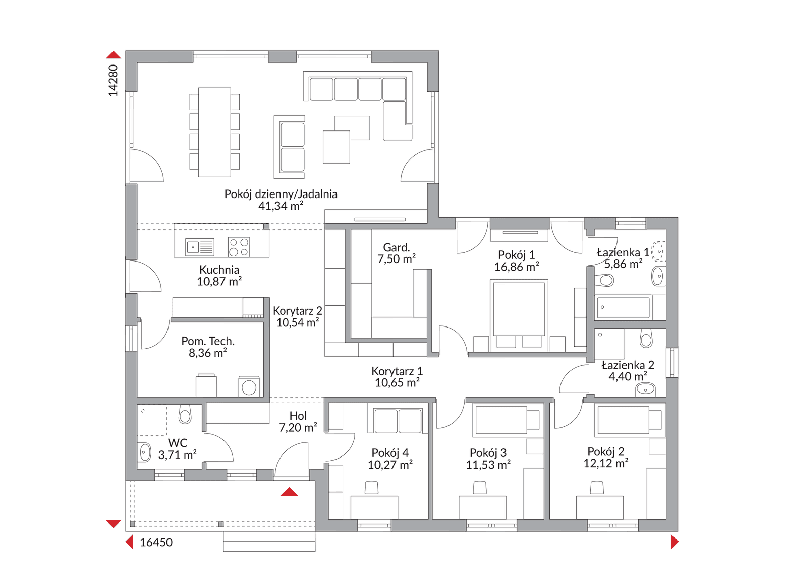
Centralnym punktem tego niezwykłego projektu domu parterowego jest imponujący, pełen naturalnego światła salon, harmonijnie połączony z jadalnią oraz otwartą kuchnią. Ta rozległa, doskonale doświetlona strefa dzienna to idealne miejsce do rodzinnego życia, organizacji przyjęć i codziennego relaksu. Dom Perfect 161 oferuje aż cztery komfortowe sypialnie, z których główna sypialnia zachwyca własną, przestronną garderobą. Wygodę codziennego użytkowania gwarantują dwie w pełni funkcjonalne łazienki, dodatkowe WC oraz niezbędne pomieszczenie techniczne.
Wybierając dom Perfect 161, inwestujesz w gotowy projekt domu najwyższej klasy od Danwood, lidera w branży domów prefabrykowanych. Ten elegancki bungalow to nie tylko przemyślany układ i luksusowe detale, ale także obietnica niezapomnianych chwil na zadaszonym tarasie, który stanie się Twoim prywatnym azylem i miejscem spotkań z bliskimi.
Co czyni projekt Perfect 161 wyjątkowym?
Zdjęcia mogą przedstawiać budynek z indywidualnymi zmianami.
Standard domu Today
Pełny opis budowy i specyfikacja materiałowa.

Rzuty
Kompletny plan wszystkich kondygnacji z metrażem






Dzięki temu, że wybraliśmy dom Danwood, zyskaliśmy czas dla rodziny. Nie musimy go spędzać na budowie, możemy się cieszyć naszym domem.