Dom półtorapiętrowy z zadaszeniem wejścia do wyższych drzwi wejściowych i trzema pokojami na piętrze. Przeszklenia do podłogi na obu kondygnacjach. Główna sypialnia z przestronną garderobą i łazienką z prysznicem en suite. Dodatkowa łazienka z wanną, prysznicem i podwójną umywalką na piętrze. Podwyższony parter z przeszklonym wykuszem narożnym i podwyższonymi przeszkleniami, otwarta kuchnia, salon i jadalnia z drzwiami przesuwnymi na taras. Gabinet z narożnym przeszkleniem do podłogi, WC dla gości, pomieszczenie techniczne, wiatrołap z garderobą, hol. Dach dwuspadowy, nachylenie 32°, ścianka kolankowa 2,0 m.
*Wizualizacje przedstawiają częściowo indywidualne wyposażenie dodatkowe.
Standard domu S-Line
Pełny opis budowy i specyfikacja materiałowa.

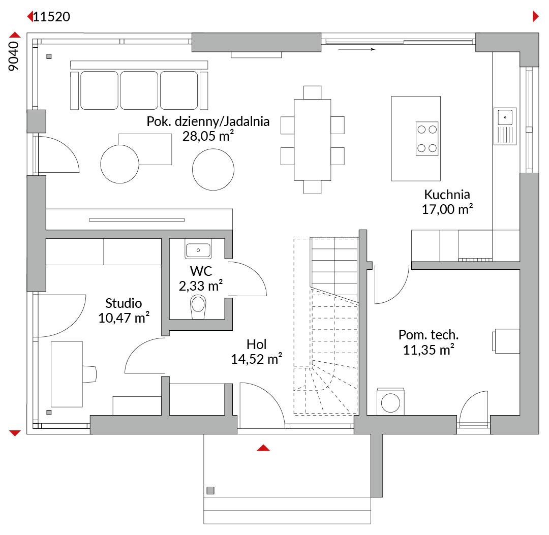
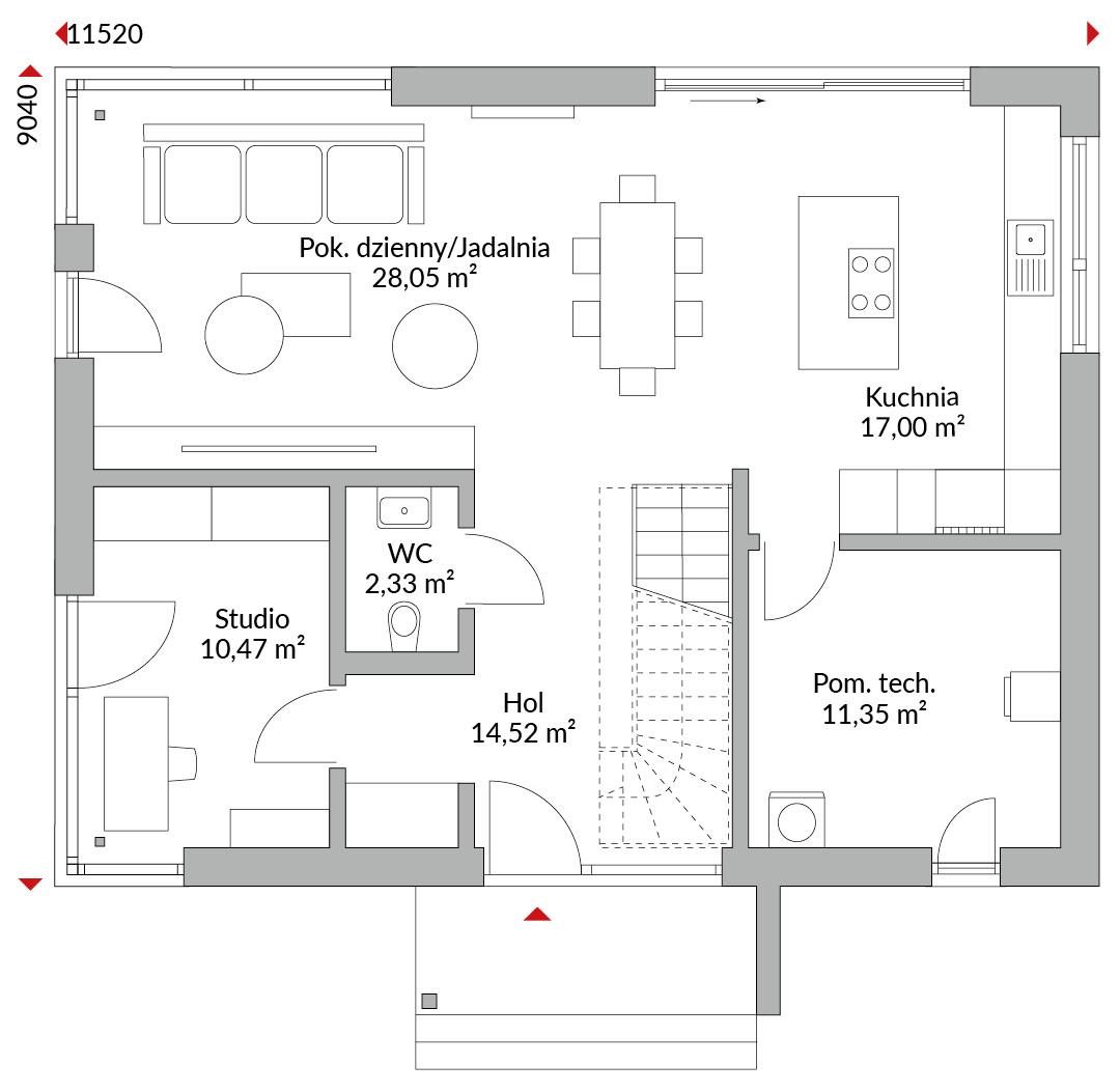
Rzuty
Kompletny plan wszystkich kondygnacji z metrażem

Dzięki temu, że wybraliśmy dom Danwood, zyskaliśmy czas dla rodziny. Nie musimy go spędzać na budowie, możemy się cieszyć naszym domem.