Odkryj projekt domu Point 169.1 (165,22 m²) – awangardową propozycję od Danwood, gdzie nowoczesna architektura spotyka się z funkcjonalnością i potwierdzoną energooszczędnością. Ten dom półtorakondygnacyjny wyróżnia się unikalną konstrukcją dachu – jednospadowego łamanego o nachyleniu 25° – oraz wysokimi ściankami kolankowymi (1,75 m i 1,424 m), co nadaje mu niepowtarzalny charakter i maksymalizuje przestrzeń użytkową poddasza. To idealne rozwiązanie dla rodzin ceniących sobie oryginalny design, otwartą strefę dzienną oraz komfort dwóch pełnowymiarowych łazienek.
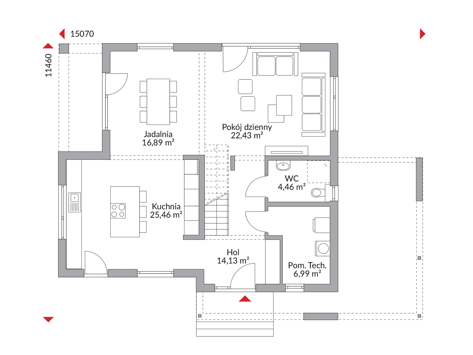
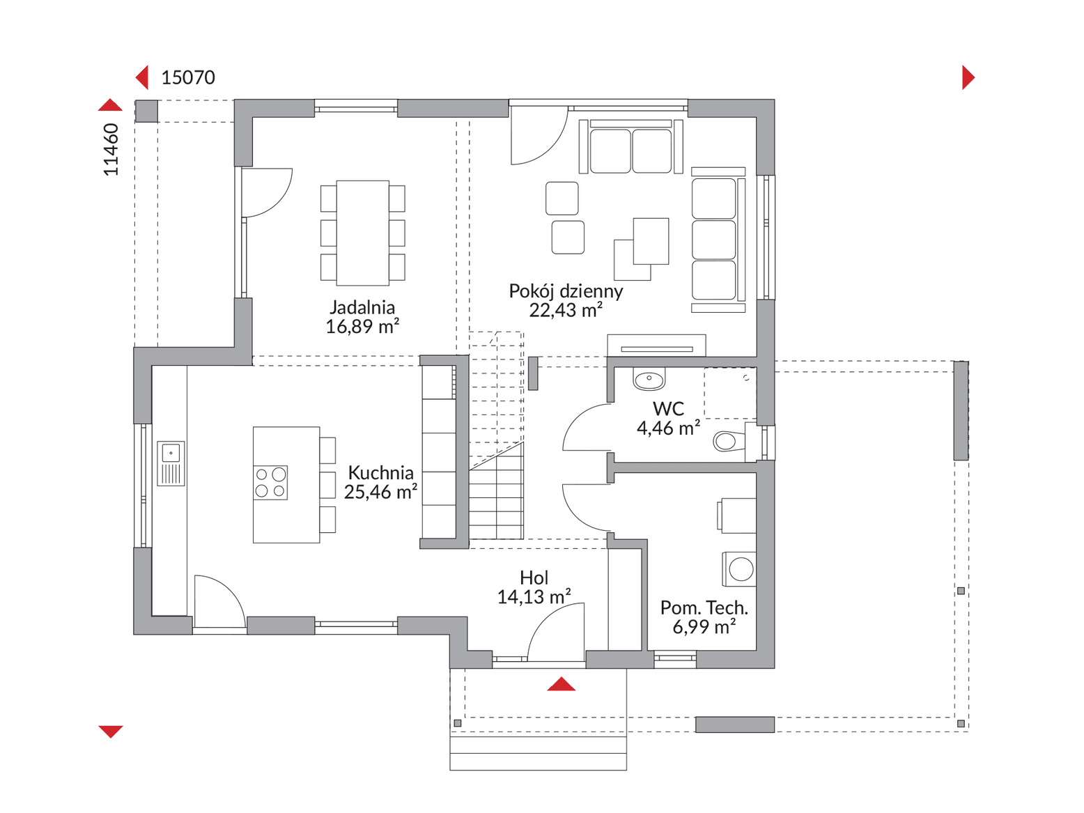
Parter domu Point 169.1 wita Cię przestronnym przedpokojem. Sercem domu jest jasna, otwarta kuchnia, która naturalnie łączy się z obszernym salonem i jadalnią, tworząc idealne miejsce do wspólnego życia i przyjmowania gości. Funkcjonalność tego poziomu podkreślają również wygodna toaleta dla gości oraz niezbędne pomieszczenie techniczne.
Poddasze, dzięki wysokim ściankom kolankowym i specyficznej konstrukcji dachu, oferuje pełnowymiarową, niezwykle ustawną przestrzeń z trzema pokojami, które możesz elastycznie zaaranżować jako komfortowe sypialnie, gabinet, czy pokoje dla dzieci. Niezwykłym atutem tego projektu domu jest obecność dwóch łazienek (WC na parterze i pełna łazienka na piętrze) oraz praktyczna garderoba, co znacznie podnosi komfort codziennego użytkowania dla wszystkich domowników.
Wybierając projekt domu Point 169.1, inwestujesz w gotowy projekt domu od Danwood, który wyróżnia się nie tylko odważnym, nowoczesnym designem, ale przede wszystkim inteligentnym planowaniem i potwierdzonym niskim zużyciem energii. To dom z poddaszem o unikalnym dachu dla świadomych klientów, ceniących jakość, styl i architektoniczną oryginalność.
Co wyróżnia projekt Point 169.1?
Zdjęcie może przedstawiać budynek z indywidualnymi zmianami.
Standard domu Today
Pełny opis budowy i specyfikacja materiałowa.

Rzuty
Kompletny plan wszystkich kondygnacji z metrażem

Dzięki temu, że wybraliśmy dom Danwood, zyskaliśmy czas dla rodziny. Nie musimy go spędzać na budowie, możemy się cieszyć naszym domem.