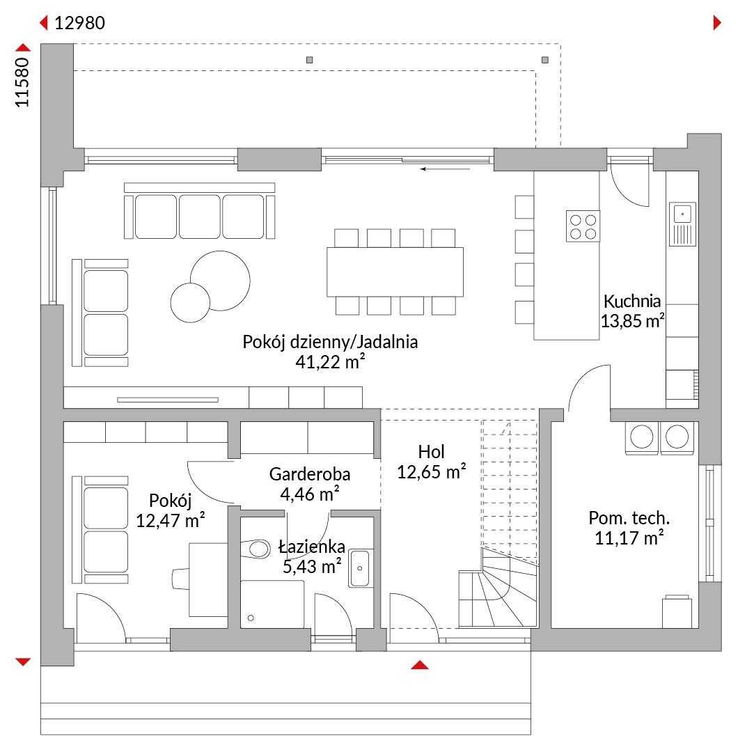
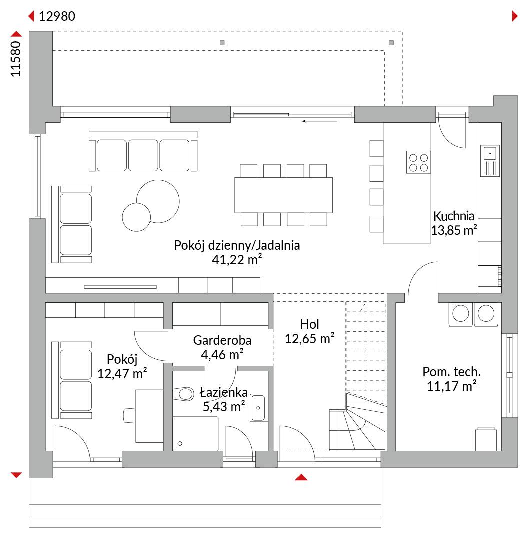
Dom półtorakondygnacyjny z zadaszonym wejściem i podwyższonymi drzwiami wejściowymi. Trzy pokoje na piętrze. Główna sypialnia z garderobą i prywatną łazienką z podwójną umywalką i prysznicem. Przestronny korytarz z kącikiem czytelniczym, antresola, druga łazienka z wanną i podwójną umywalką. Na parterze oddzielny pokój wielofunkcyjny. Podwyższony parter z przeszklonymi powierzchniami od podłogi do sufitu jako otwarta przestrzeń kuchni, salonu i jadalni z drzwiami przesuwnymi prowadzącymi na taras. Pomieszczenie techniczne i hol z garderobą, toaleta dla gości. Dach dwuspadowy, nachylenie 38°, ścianka kolankowa 1,75 m.
*Wizualizacje przedstawiają częściowo indywidualne wyposażenie dodatkowe.
Standard domu S-Line
Pełny opis budowy i specyfikacja materiałowa.

Rzuty
Kompletny plan wszystkich kondygnacji z metrażem

Dzięki temu, że wybraliśmy dom Danwood, zyskaliśmy czas dla rodziny. Nie musimy go spędzać na budowie, możemy się cieszyć naszym domem.