Dom półtorakondygnacyjny z zadaszonym wejściem i podwyższonymi drzwiami wejściowymi. Podwyższony parter z wyższymi oknami w części jadalnej tworzy otwartą dużą przestrzeń. Narożne przeszklenia w części jadalnej i salonie oraz drzwiami przesuwnymi prowadzącymi na taras i do ogrodu. Oddzielny pokój typu studio jako przestrzeń gościnna lub biuro, toaleta dla gości. Trzy sypialnie, garderoba dostępna z dwóch sypialni. Jedna sypialnia z łazienką i garderobą. Dodatkowa łazienka z prysznicem i schowek. Pomieszczenie techniczne, hol i korytarz. Dach dwuspadowy z szerokim okapem (60 cm), nachylenie 25°, ścianka kolankowa 2,00 m.
*Wizualizacje przedstawiają częściowo indywidualne wyposażenie dodatkowe.
Standard domu S-Line
Pełny opis budowy i specyfikacja materiałowa.

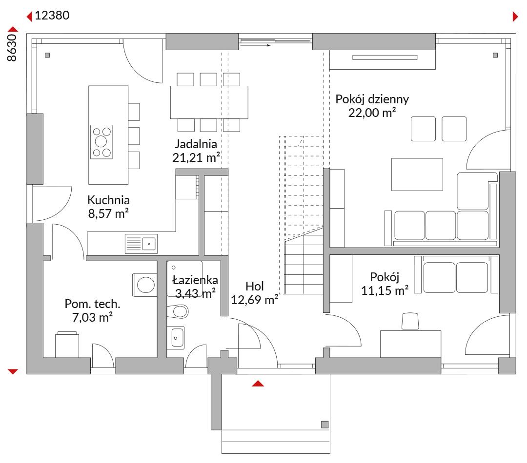
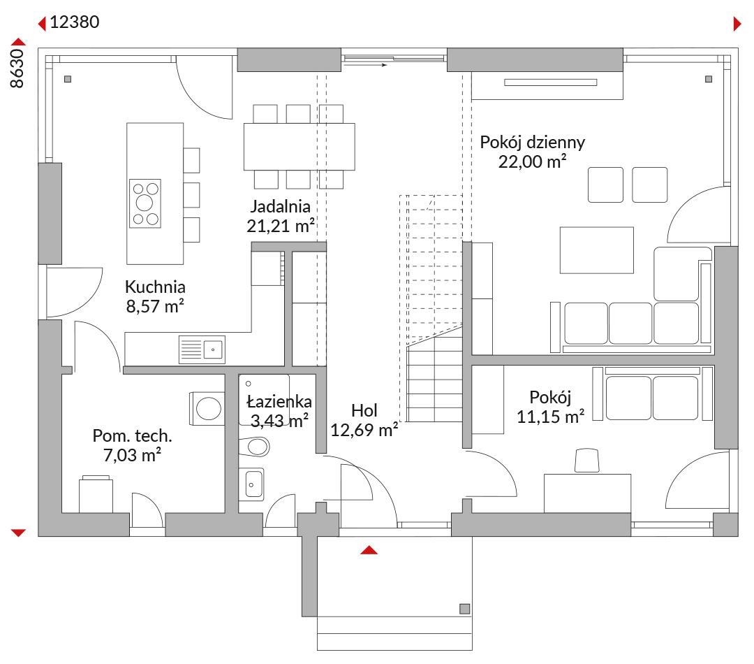
Rzuty
Kompletny plan wszystkich kondygnacji z metrażem

Dzięki temu, że wybraliśmy dom Danwood, zyskaliśmy czas dla rodziny. Nie musimy go spędzać na budowie, możemy się cieszyć naszym domem.