Odkryj projekt domu Point 144 (141,98 m²) – perłę w kolekcji Danwood, gdzie nowoczesna architektura łączy się z niezwykłym komfortem i inteligentnym planowaniem przestrzeni. Ten energooszczędny dom półtorakondygnacyjny, zwieńczony dachem dwuspadowym o klasycznym nachyleniu 30° i z wysoką ścianką kolankową (150 cm), to idealna propozycja dla rodzin ceniących sobie zarówno otwartą strefę dzienną, jak i przytulne, prywatne pokoje na funkcjonalnym poddaszu.
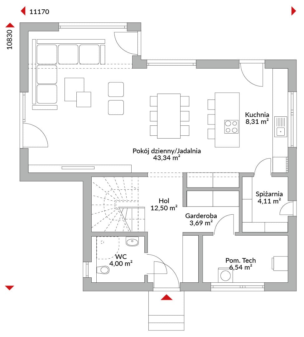
Parter domu Point 144 to serce Twojego domowego ogniska. Przestronny salon, połączony z jadalnią oraz półotwartą kuchnią z praktyczną spiżarnią, tworzy jasną i przyjazną strefę idealną do wspólnego spędzania czasu. To miejsce, gdzie życie rodzinne nabiera smaku, a codzienne chwile stają się wyjątkowe. Funkcjonalność parteru podkreślają również wygodna toaleta (WC) oraz niezbędne pomieszczenie techniczne.
Poddasze, dzięki wysokiej ściance kolankowej, oferuje pełnowymiarową przestrzeń z trzema komfortowymi sypialniami (łącznie cztery pokoje w całym domu), które zapewnią idealne warunki do odpoczynku każdemu domownikowi. Komfort na tym poziomie zapewnia duża, rodzinna łazienka oraz praktyczna garderoba, co jest istotnym atutem tego projektu domu.
Wybierając projekt domu Point 144, inwestujesz w gotowy projekt domu od Danwood, który wyróżnia się inteligentnym planowaniem i możliwością adaptacji do indywidualnych potrzeb. To nowoczesny dom z poddaszem dla ludzi ceniących jakość, styl i energooszczędne rozwiązania.
Co wyróżnia projekt Point 144?
Zdjęcia mogą przedstawiać budynek z indywidualnymi zmianami.
Standard domu Today
Pełny opis budowy i specyfikacja materiałowa.

Rzuty
Kompletny plan wszystkich kondygnacji z metrażem

Dzięki temu, że wybraliśmy dom Danwood, zyskaliśmy czas dla rodziny. Nie musimy go spędzać na budowie, możemy się cieszyć naszym domem.