Odkryj projekt domu Point 142.1 (138,79 m²) – perłę w kolekcji Danwood, gdzie nowoczesna architektura spotyka się z funkcjonalnością i potwierdzoną energooszczędnością. Ten dom półtorakondygnacyjny, z dynamicznym dachem dwuspadowym o stromym nachyleniu 45° i praktyczną ścianką kolankową (75 cm), to idealna propozycja dla tych, którzy cenią sobie wyrazisty styl, inteligentne rozwiązania i niskie koszty utrzymania.
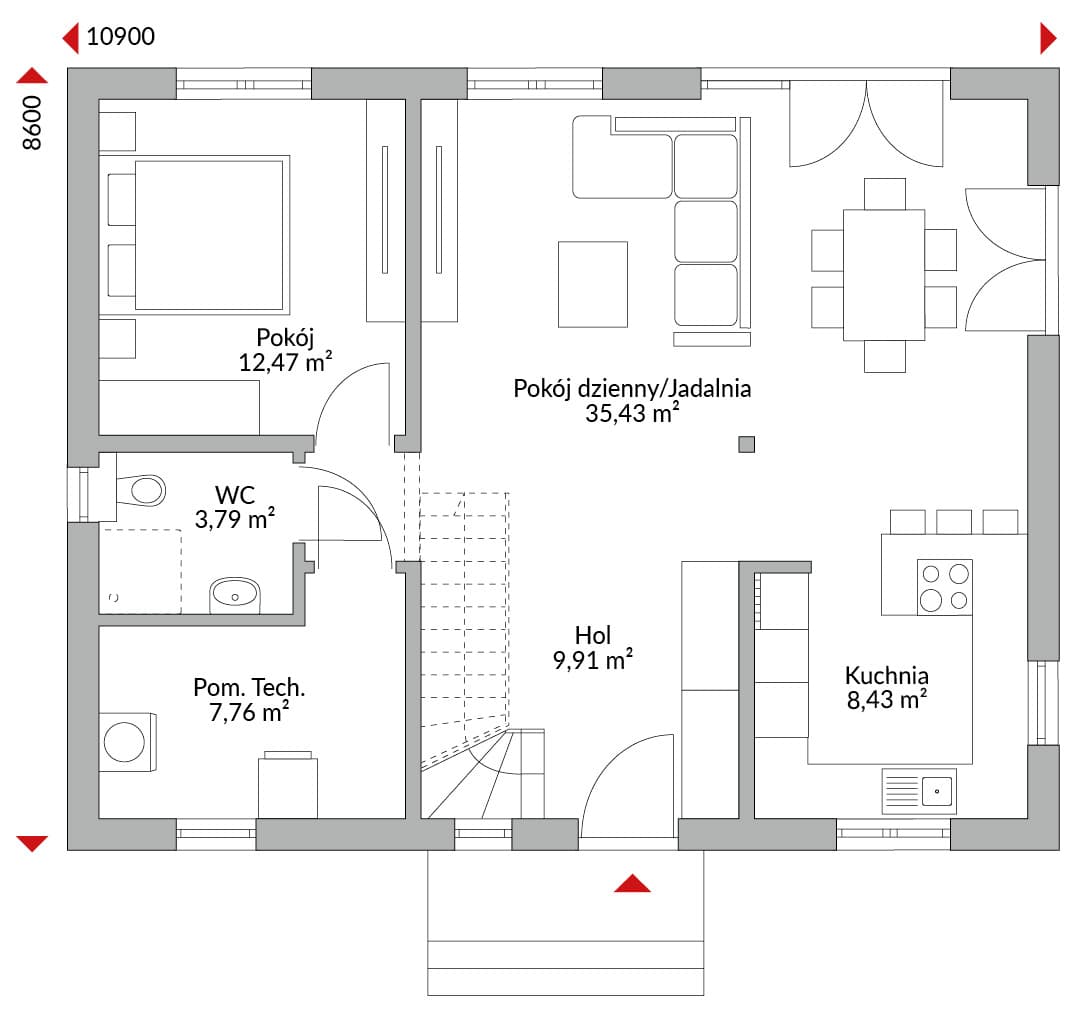
Parter domu Point 142.1 to przestrzeń tętniąca życiem. Otwarta kuchnia naturalnie łączy się z przestronnym salonem i jadalnią, tworząc serce domu – idealne do wspólnych chwil, przyjmowania gości i codziennego relaksu. Funkcjonalność tego poziomu podkreślają również wygodna toaleta dla gości, obszerny hol oraz niezbędne pomieszczenie techniczne.
Poddasze to Twoja prywatna strefa komfortu, oferująca dwa pokoje, które możesz elastycznie zaaranżować, tworząc przytulne azyle do odpoczynku lub inspirujące miejsca do pracy.
Wybierając projekt domu Point 142.1, inwestujesz w gotowy projekt domu od Danwood, który wyróżnia się nie tylko nowoczesnym designem, ale także potwierdzonym niskim zużyciem energii. To dom z poddaszem dla świadomych klientów, ceniących jakość, styl i ekologiczne rozwiązania, idealny jako dom dla rodziny lub osób poszukujących komfortowej przestrzeni.
Co wyróżnia projekt Point 142.1?
Zdjęcia mogą przedstawiać budynek z indywidualnymi zmianami.
Standard domu Today
Pełny opis budowy i specyfikacja materiałowa.

Rzuty
Kompletny plan wszystkich kondygnacji z metrażem

Dzięki temu, że wybraliśmy dom Danwood, zyskaliśmy czas dla rodziny. Nie musimy go spędzać na budowie, możemy się cieszyć naszym domem.