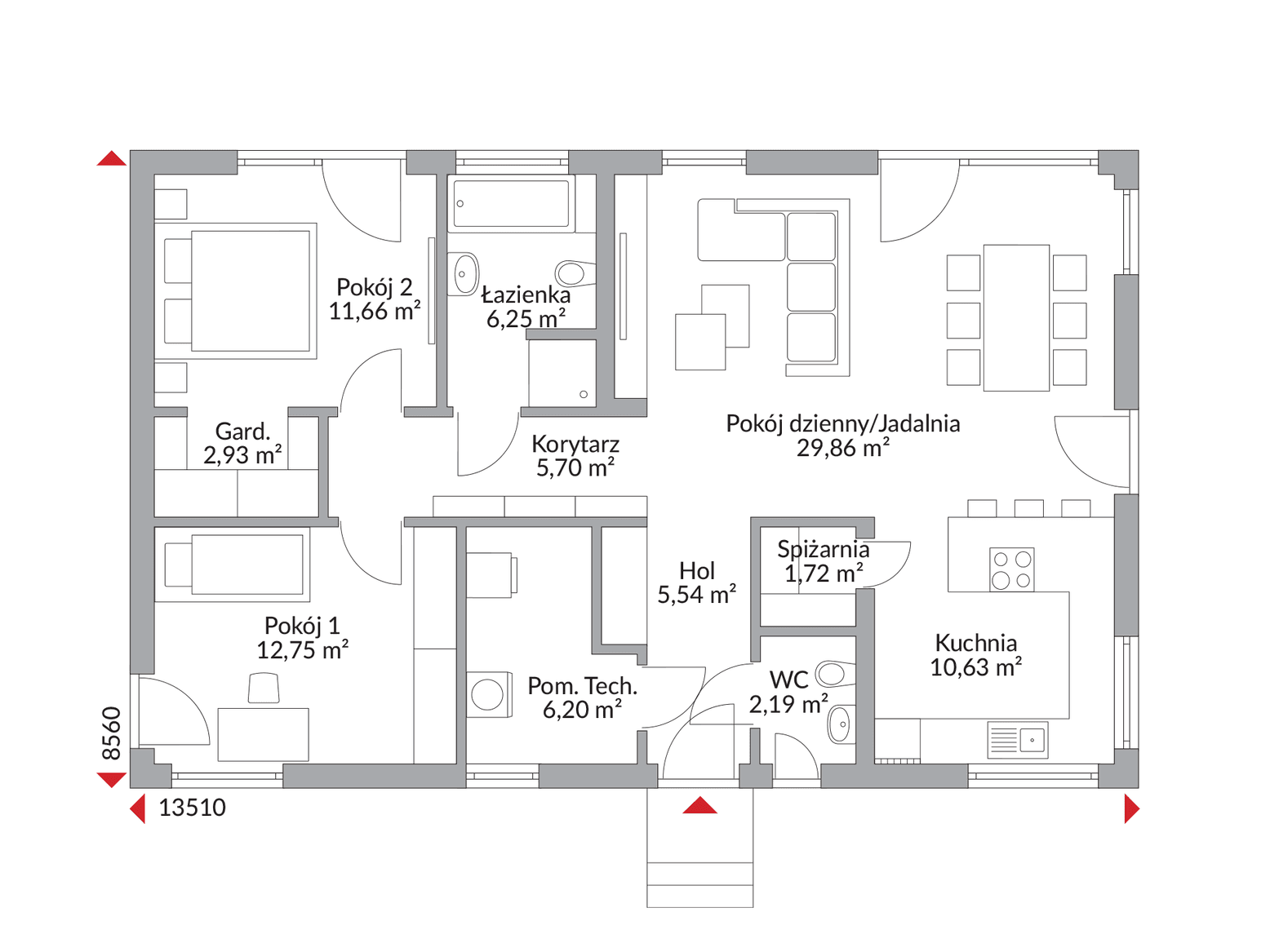
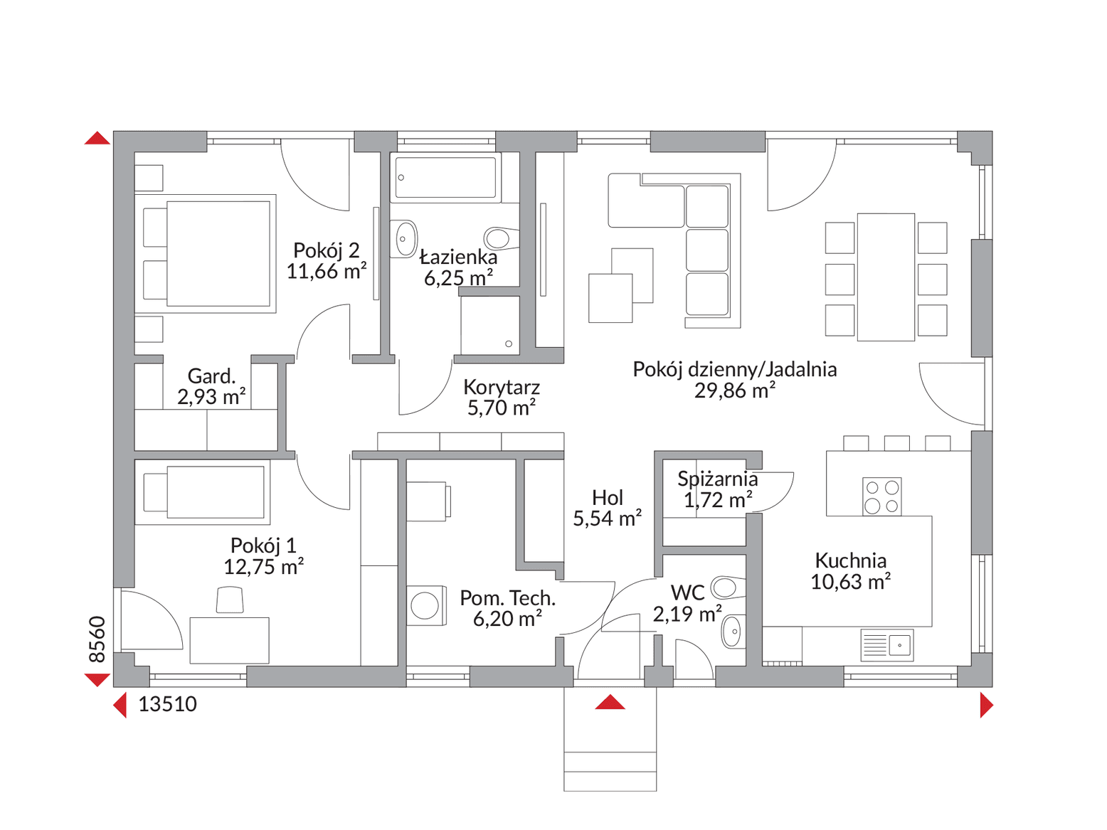
Odkryj projekt domu Perfect 95 (95,43 m²) – uroczy bungalow od Danwood, który udowadnia, że komfort i funkcjonalność nie potrzebują ogromnej przestrzeni. Ten energooszczędny dom parterowy, zwieńczony klasycznym dachem dwuspadowym o nachyleniu 22°, to idealna propozycja dla par, singli lub małych rodzin, które marzą o własnym, przytulnym kącie, łatwym w utrzymaniu i pełnym inteligentnych rozwiązań.
Sercem tego małego domu parterowego jest jasna i przestronna jak na swój metraż otwarta strefa dzienna, łącząca salon, jadalnię oraz funkcjonalną kuchnię z praktyczną spiżarnią. To idealnie zaprojektowane miejsce do codziennego życia, relaksu i przyjmowania gości. Dom Perfect 95 oferuje dwa komfortowe pokoje (łącznie trzy pokoje), które świetnie sprawdzą się jako sypialnia i gabinet lub pokój dla dziecka. Całość dopełniają dobrze rozplanowana łazienka oraz niezbędne pomieszczenie techniczne.
Wybierając projekt domu Perfect 95, decydujesz się na gotowy projekt domu najwyższej jakości od Danwood, lidera w budowie domów prefabrykowanych. Ten uroczy bungalow to kwintesencja przemyślanego designu, gdzie każdy metr kwadratowy został optymalnie wykorzystany, by zapewnić Ci komfortowe i stylowe życie bez kompromisów.
Dlaczego warto wybrać kompaktowy projekt Perfect 95?
Zdjęcia mogą przedstawiać budynek z indywidualnymi zmianami.
Standard domu Today
Pełny opis budowy i specyfikacja materiałowa.

Rzuty
Kompletny plan wszystkich kondygnacji z metrażem






Dzięki temu, że wybraliśmy dom Danwood, zyskaliśmy czas dla rodziny. Nie musimy go spędzać na budowie, możemy się cieszyć naszym domem.