Odkryj projekt domu Perfect 192 (191,78 m²) – wyjątkowy bungalow od Danwood, który definiuje na nowo pojęcie luksusowego życia na jednym poziomie. Ten energooszczędny dom parterowy, zwieńczony eleganckim dachem czterospadowym o nachyleniu 25°, to idealna propozycja dla najbardziej wymagających klientów, poszukujących przestronnych wnętrz, najwyższej jakości wykonania i funkcjonalnych rozwiązań, w tym pięknego, zadaszonego wyjścia na taras.
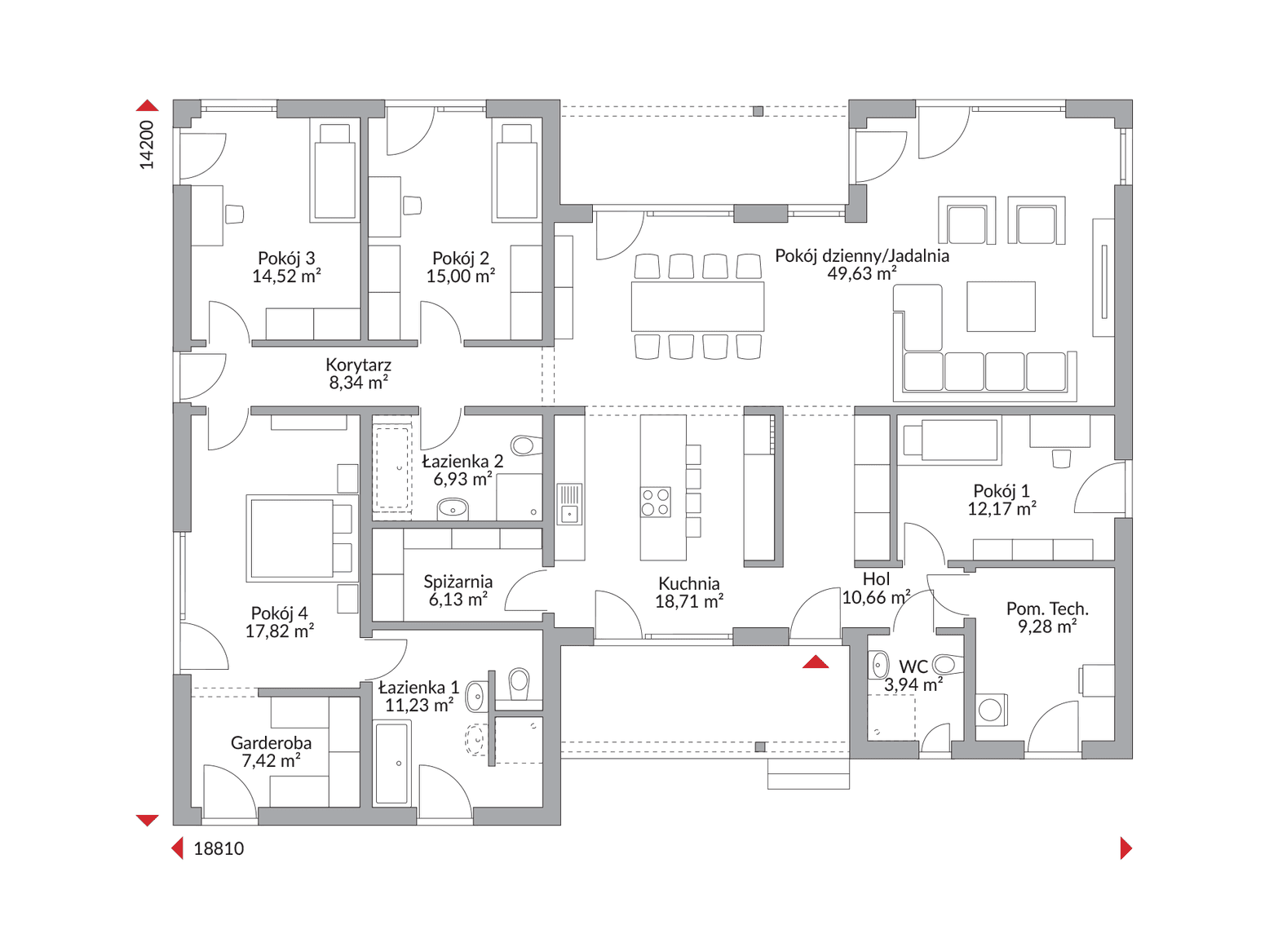
Sercem tej okazałej rezydencji parterowej jest imponujący, skąpany w świetle salon, harmonijnie połączony z jadalnią oraz otwartą kuchnią z praktyczną spiżarnią. Ta niezwykle przestronna, doskonale doświetlona strefa dzienna to idealne miejsce do reprezentacyjnego przyjmowania gości, rodzinnego życia i codziennego relaksu. Dom Perfect 192 oferuje aż cztery komfortowe sypialnie, z których główna sypialnia zachwyca własną, przestronną garderobą, tworząc luksusową strefę prywatności. Niezrównany komfort zapewniają dwie w pełni funkcjonalne łazienki, dodatkowe WC oraz niezbędne pomieszczenie techniczne.
Wybierając dom Perfect 192, inwestujesz w gotowy projekt domu o najwyższym standardzie od Danwood, lidera w branży domów prefabrykowanych. Ten luksusowy bungalow to nie tylko przemyślany układ i imponująca przestrzeń, ale także obietnica niezapomnianych chwil na zadaszonym tarasie, który stanie się naturalnym przedłużeniem salonu i Twoim ulubionym miejscem wypoczynku.
Co czyni projekt Perfect 192 wyjątkowym?
Zdjęcia mogą przedstawiać budynek z indywidualnymi zmianami.
Standard domu Today
Pełny opis budowy i specyfikacja materiałowa.

Rzuty
Kompletny plan wszystkich kondygnacji z metrażem






Dzięki temu, że wybraliśmy dom Danwood, zyskaliśmy czas dla rodziny. Nie musimy go spędzać na budowie, możemy się cieszyć naszym domem.