Marzysz o przestronnym domu parterowym, który łączy w sobie elegancję, funkcjonalność i komfort życia na jednym poziomie? Projekt Perfect 126 od Danwood (126,28 m²) to idealna propozycja dla rodzin ceniących sobie zarówno otwartą przestrzeń do wspólnego życia, jak i przytulne, prywatne zakątki. Ten energooszczędny bungalow z klasycznym dachem czterospadowym o nachyleniu 25° został zaprojektowany, by spełnić oczekiwania nawet najbardziej wymagających.
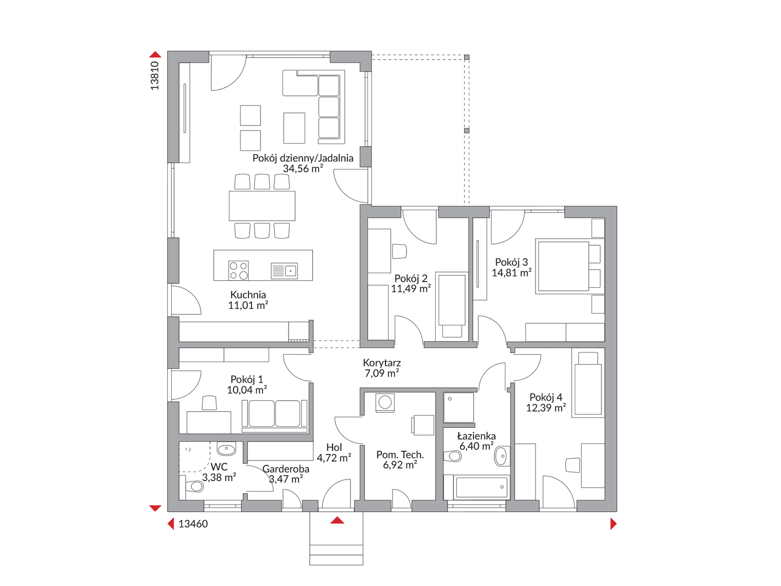
Przestronny salon z jadalnią i otwartą kuchnią stanowi serce tego wyjątkowego projektu domu. To idealne miejsce na rodzinne spotkania, celebracje i codzienne chwile relaksu, skąpane w naturalnym świetle. Aż pięć pokoi (w tym cztery komfortowe sypialnie) zapewnia każdemu domownikowi własną przestrzeń, a funkcjonalna łazienka i praktyczne pomieszczenie techniczne dopełniają całości, gwarantując wygodę na każdym kroku.
Wybierając projekt domu Perfect 126, inwestujesz w gotowy projekt domu parterowego najwyższej jakości, który możesz dostosować do swoich potrzeb. Danwood, jako doświadczony producent domów prefabrykowanych, zapewnia szybką realizację i kompleksową obsługę. Ten piękny bungalow to nie tylko komfortowe wnętrze, ale także doskonała harmonia z otoczeniem.
Kluczowe zalety projektu Perfect 126:
Zdjęcia mogą przedstawiać budynek z indywidualnymi zmianami.
Standard domu Today
Pełny opis budowy i specyfikacja materiałowa.

Rzuty
Kompletny plan wszystkich kondygnacji z metrażem






Dzięki temu, że wybraliśmy dom Danwood, zyskaliśmy czas dla rodziny. Nie musimy go spędzać na budowie, możemy się cieszyć naszym domem.