Ten bungalow dla małej rodziny charakteryzuje się dużymi oknami, wpuszczającymi do środka dużą ilość światła dziennego. Przemyślany podział na pokoje optymalnie organizuje niewielką powierzchnię. Opcjonalnie dostępna jest wielobarwna elewacja, która będzie przyciągać uwagę swoim pięknem.
Standard domu Family
Pełny opis budowy i specyfikacja materiałowa.

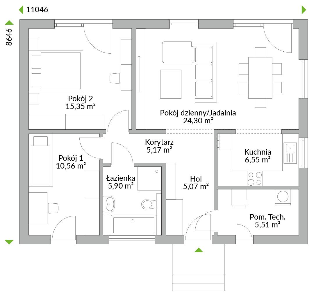
Rzuty
Kompletny plan wszystkich kondygnacji z metrażem






Dzięki temu, że wybraliśmy dom Danwood, zyskaliśmy czas dla rodziny. Nie musimy go spędzać na budowie, możemy się cieszyć naszym domem.