Marzysz o komfortowym, parterowym domu, gdzie wszystko jest na jednym poziomie, a życie płynie spokojniej? Bungalow Perfect 101 od Danwood to esencja wygody i uroku, idealnie wpisująca się w potrzeby tych, którzy cenią sobie praktyczność i elegancję bez schodów! Ten bungalow o powierzchni 101,02 m² z klasycznym dachem czterospadowym to prawdziwa oaza spokoju dla Ciebie i Twojej rodziny.
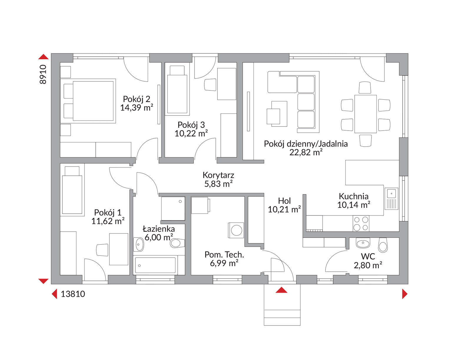
Wyobraź sobie przestronny, otwarty salon połączony z jadalnią i kuchnią, tworzący serce domu, idealne do wspólnego spędzania czasu. Trzy przytulne pokoje dają swobodę aranżacji – czy to jako sypialnie, gabinet czy pokój gościnny – a funkcjonalna łazienka i praktyczne pomieszczenie techniczne dopełniają całości, zapewniając komfort na co dzień. To idealne rozwiązanie dla osób ceniących dostępność i bliskość natury, z łatwym dostępem do ogrodu z każdego zakątka.
Perfect 101 to nie tylko piękny design, ale także energooszczędność i pewność jakości Danwood. Zakochaj się w parterowym komforcie i stwórz swój idealny azyl z projektem, który jest po prostu perfekcyjny!
Zdjęcia mogą przedstawiać budynek z indywidualnymi zmianami.
Standard domu Today
Pełny opis budowy i specyfikacja materiałowa.

Rzuty
Kompletny plan wszystkich kondygnacji z metrażem






Dzięki temu, że wybraliśmy dom Danwood, zyskaliśmy czas dla rodziny. Nie musimy go spędzać na budowie, możemy się cieszyć naszym domem.