Dom półtorakondygnacyjny z zadaszonym wejściem i podwyższonymi drzwiami wejściowymi. Trzy pokoje na piętrze. Główna sypialnia z garderobą i łazienką en suite z podwójną umywalką, opcjonalnie z wolnostojącą wanną i prysznicem. Dodatkowa łazienka z prysznicem. Dwa pomieszczenia gospodarcze. Okna sięgające podłogi w formie szczytowych lub dwuspadowych. Na parterze oddzielny pokój typu studio. Podwyższony parter z pełnymi przeszkleniami od podłogi do sufitu jako otwarta kuchnia, salon i jadalnia z drzwiami przesuwnymi na taras. Spiżarnia, pomieszczenie techniczne, hol z garderobą, toaleta dla gości z prysznicem. Dach dwuspadowy z szerokim okapem (60 cm) od strony ogrodu, nachylenie 38°, ścianka kolankowa 1,50 m.
*Wizualizacje przedstawiają częściowo indywidualne wyposażenie dodatkowe.
Standard domu S-Line
Pełny opis budowy i specyfikacja materiałowa.

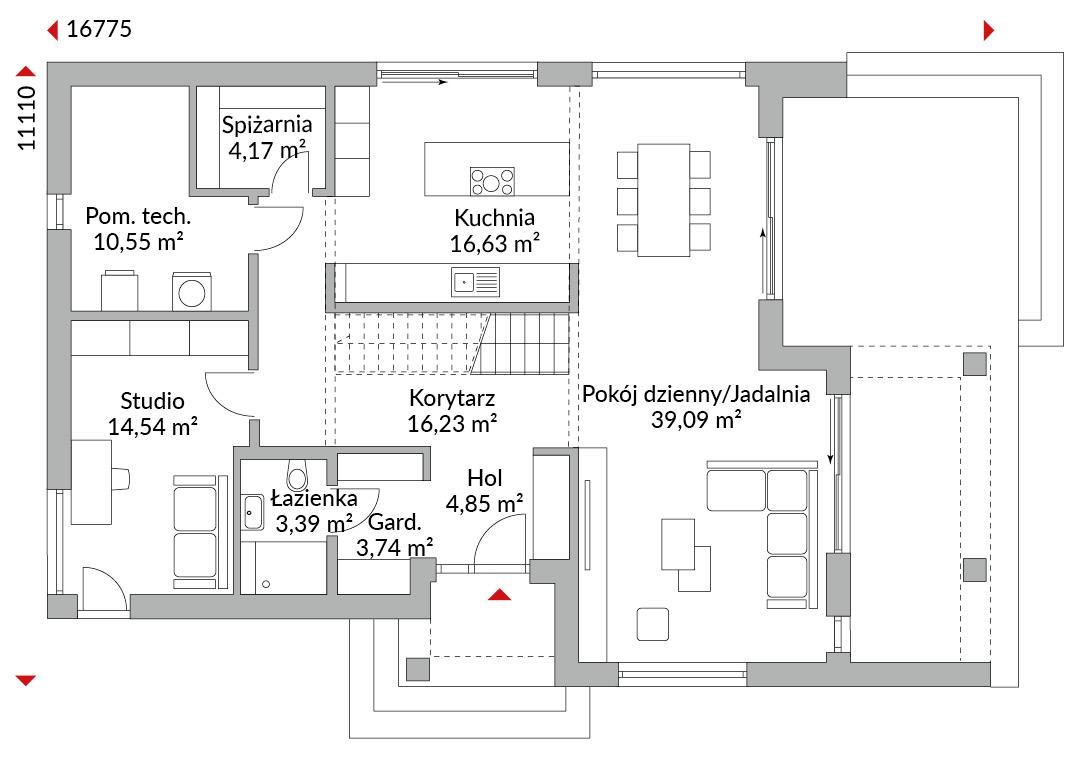
Rzuty
Kompletny plan wszystkich kondygnacji z metrażem

Dzięki temu, że wybraliśmy dom Danwood, zyskaliśmy czas dla rodziny. Nie musimy go spędzać na budowie, możemy się cieszyć naszym domem.