Odkryj projekt domu Point 162 (158,33 m²) – wyjątkową propozycję od Danwood, gdzie nowoczesna architektura łączy się z funkcjonalnością i potwierdzoną energooszczędnością. Ten dom półtorakondygnacyjny, zwieńczony klasycznym dachem dwuspadowym o nachyleniu 30° i z wysoką ścianką kolankową (150 cm), to idealne rozwiązanie dla rodzin ceniących sobie zarówno otwartą strefę dzienną, jak i liczne, prywatne pokoje z doskonałym doświetleniem.
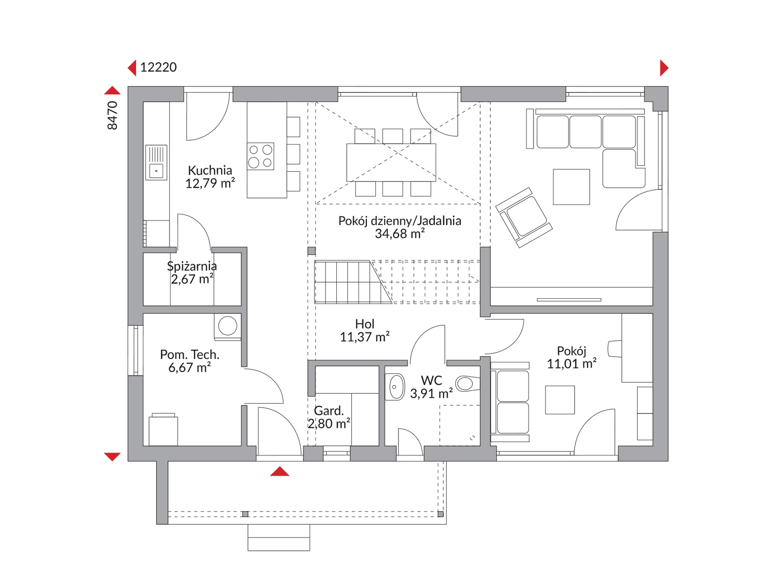
Parter domu Point 162 wita Cię przestronnym holem z praktyczną garderobą. Sercem domu jest jasna, otwarta kuchnia z funkcjonalną spiżarnią, która naturalnie łączy się z obszernym salonem i jadalnią, tworząc idealne miejsce do wspólnego życia, przyjmowania gości i celebrowania każdej chwili. Funkcjonalność tego poziomu podkreślają również wygodna toaleta dla gości oraz niezbędne pomieszczenie techniczne.
Poddasze, dzięki wysokiej ściance kolankowej, oferuje pełnowymiarową przestrzeń z trzema pokojami, które możesz elastycznie zaaranżować jako komfortowe sypialnie, gabinet, czy pokoje dla dzieci, dopasowując je do rytmu życia Twojej rodziny. Komfort na tym poziomie zapewnia duża, rodzinna łazienka oraz praktyczna garderoba.
Wybierając projekt domu Point 162, inwestujesz w gotowy projekt domu od Danwood, który wyróżnia się nie tylko nowoczesnym designem, ale przede wszystkim inteligentnym planowaniem i potwierdzonym niskim zużyciem energii. To dom z poddaszem dla świadomych klientów, ceniących jakość, styl i praktyczne rozwiązania, idealny jako dom dla rodziny.
Co wyróżnia projekt Point 162?
Zdjęcia mogą przedstawiać budynek z indywidualnymi zmianami.
Standard domu Today
Pełny opis budowy i specyfikacja materiałowa.

Rzuty
Kompletny plan wszystkich kondygnacji z metrażem

Dzięki temu, że wybraliśmy dom Danwood, zyskaliśmy czas dla rodziny. Nie musimy go spędzać na budowie, możemy się cieszyć naszym domem.