Przedstawiamy projekt domu Point 128 (125,19 m²) – perłę w kolekcji Danwood, gdzie nowoczesna forma spotyka się z przemyślaną funkcjonalnością, tworząc idealne tło dla Twojego dynamicznego życia. Ten energooszczędny dom półtorakondygnacyjny, z charakterystycznym dachem dwuspadowym o stromym nachyleniu 40° i praktyczną ścianką kolankową (75 cm), to propozycja dla tych, którzy cenią sobie wyrazisty design i inteligentne wykorzystanie każdego metra.
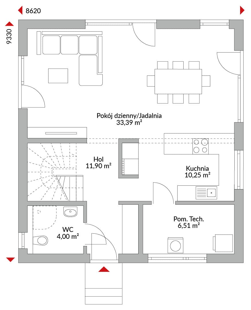
Parter domu Point 128 to przestrzeń, która inspiruje do działania. Otwarta kuchnia naturalnie przechodzi w przestronny salon z jadalnią, tworząc pulsujące życiem centrum domu – idealne do spotkań, wspólnych posiłków i chwil relaksu. Wygodna toaleta dla gości oraz niezbędne pomieszczenie techniczne zapewniają codzienny komfort i doskonałą organizację.
Poddasze to Twoja prywatna strefa spokoju, oferująca trzy komfortowe sypialnie, które możesz zaaranżować według własnego uznania – tworząc przytulne azyle do odpoczynku, kreatywne pracownie lub pokoje dla najbliższych. Funkcjonalna łazienka na tym poziomie dopełnia całości, gwarantując wygodę wszystkim domownikom.
Wybierając projekt domu Point 128, inwestujesz w gotowy projekt domu od Danwood, który łączy w sobie śmiałą estetykę z praktycznymi rozwiązaniami. To nowoczesny dom z poddaszem dla ludzi ceniących indywidualizm, jakość i dynamiczny styl życia.
Co definiuje projekt Point 128?
Zdjęcia mogą przedstawiać budynek z indywidualnymi zmianami.
Standard domu Today
Pełny opis budowy i specyfikacja materiałowa.

Rzuty
Kompletny plan wszystkich kondygnacji z metrażem

Dzięki temu, że wybraliśmy dom Danwood, zyskaliśmy czas dla rodziny. Nie musimy go spędzać na budowie, możemy się cieszyć naszym domem.