Oto największy dom z rodziny Family. Dom, który spełni Twoje wszystkie marzenia. Na parterze wersji V3 znalazło się przestronne studio, a na poddaszu pojawia się garderoba przydzielona do jednego z pokoi.
Standard domu Family
Pełny opis budowy i specyfikacja materiałowa.

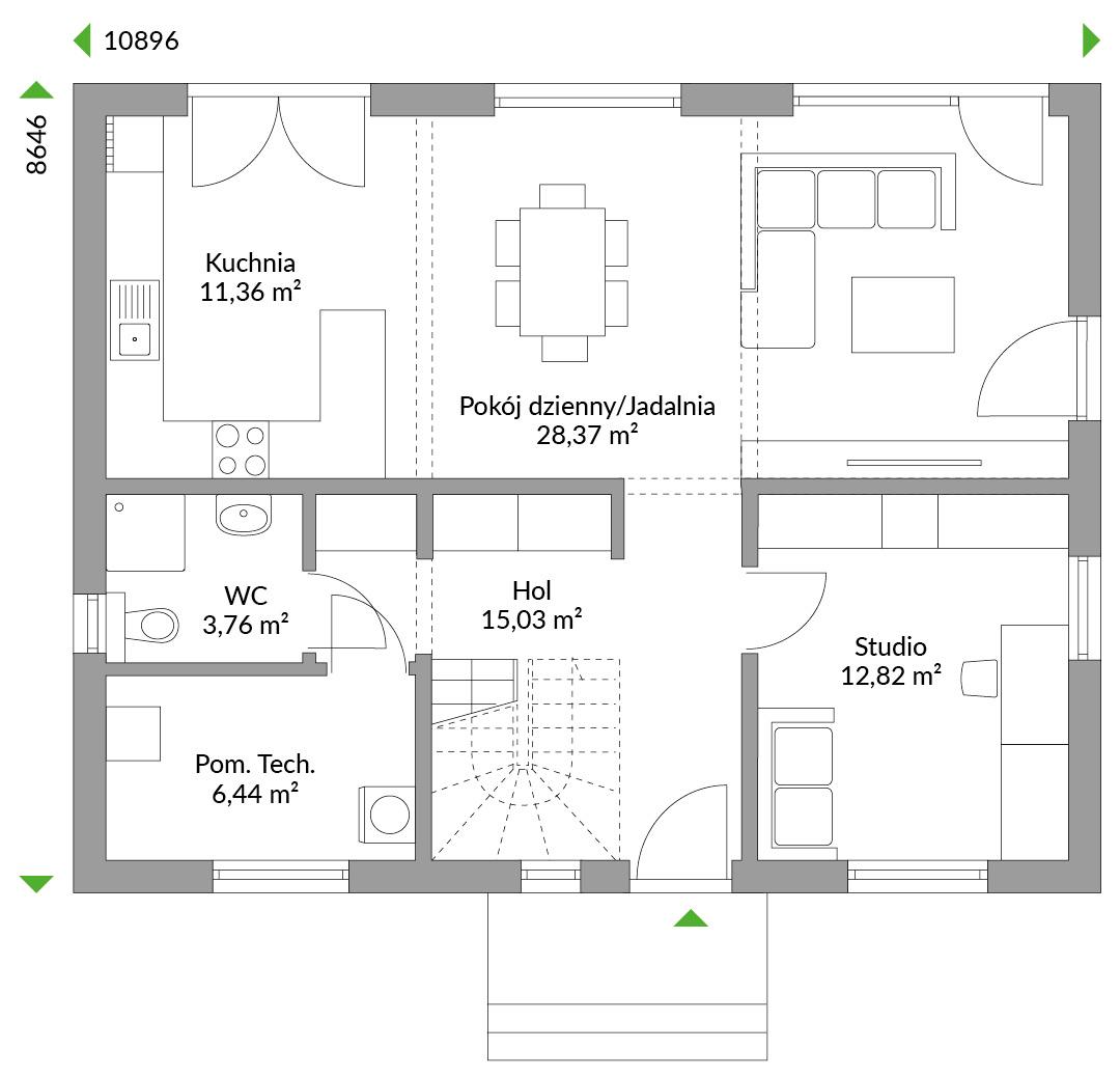
Rzuty
Kompletny plan wszystkich kondygnacji z metrażem

Dzięki temu, że wybraliśmy dom Danwood, zyskaliśmy czas dla rodziny. Nie musimy go spędzać na budowie, możemy się cieszyć naszym domem.