Oto największy dom z rodziny Family. Dom, który spełni Twoje wszystkie marzenia. Na parterze wersji V2 została wydzielona spiżarnia, a na poddaszu pojawia się garderoba oraz zwiększa metraż łazienki.
Standard domu Family
Pełny opis budowy i specyfikacja materiałowa.

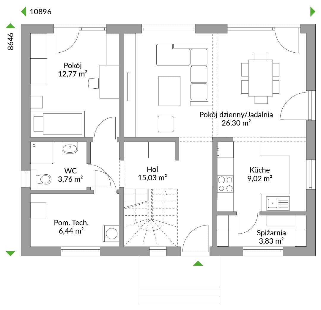
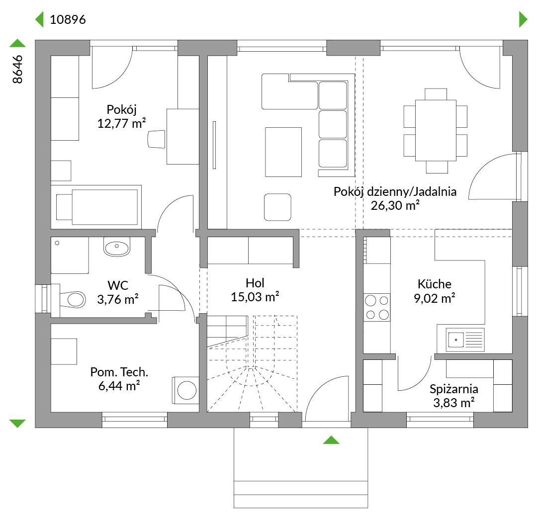
Rzuty
Kompletny plan wszystkich kondygnacji z metrażem

Dzięki temu, że wybraliśmy dom Danwood, zyskaliśmy czas dla rodziny. Nie musimy go spędzać na budowie, możemy się cieszyć naszym domem.