Pod dachem tego domu rodzina z dwójką dzieci znajdzie przestrzeń, która jest jednocześnie kompaktowa i komfortowa, zapewniając każdemu z mieszkańców własny, prywatny zakątek. Dzięki łazience wyposażonej w prysznic i wannę oraz dodatkowemu osobnemu WC, dom doskonale odpowiada potrzebom każdej rodziny. Przestronna kuchnia, w zależności od stylu życia mieszkańców, może być otwarta lub zamknięta.
Standard domu Family
Pełny opis budowy i specyfikacja materiałowa.

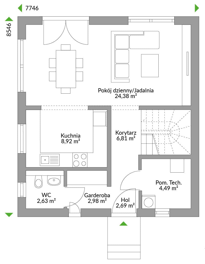
Rzuty
Kompletny plan wszystkich kondygnacji z metrażem

Dzięki temu, że wybraliśmy dom Danwood, zyskaliśmy czas dla rodziny. Nie musimy go spędzać na budowie, możemy się cieszyć naszym domem.