Poszukujesz domu, który łączy w sobie reprezentacyjny styl z rodzinnym ciepłem i funkcjonalnością na najwyższym poziomie? Projekt Park 186W (o powierzchni użytkowej 182,68 m²) to idealna propozycja dla tych, którzy cenią sobie elegancję, przestronność i komfort życia w dwukondygnacyjnej willi. Jego piękna bryła, przyciąga wzrok i obiecuje wnętrze pełne światła i harmonii.
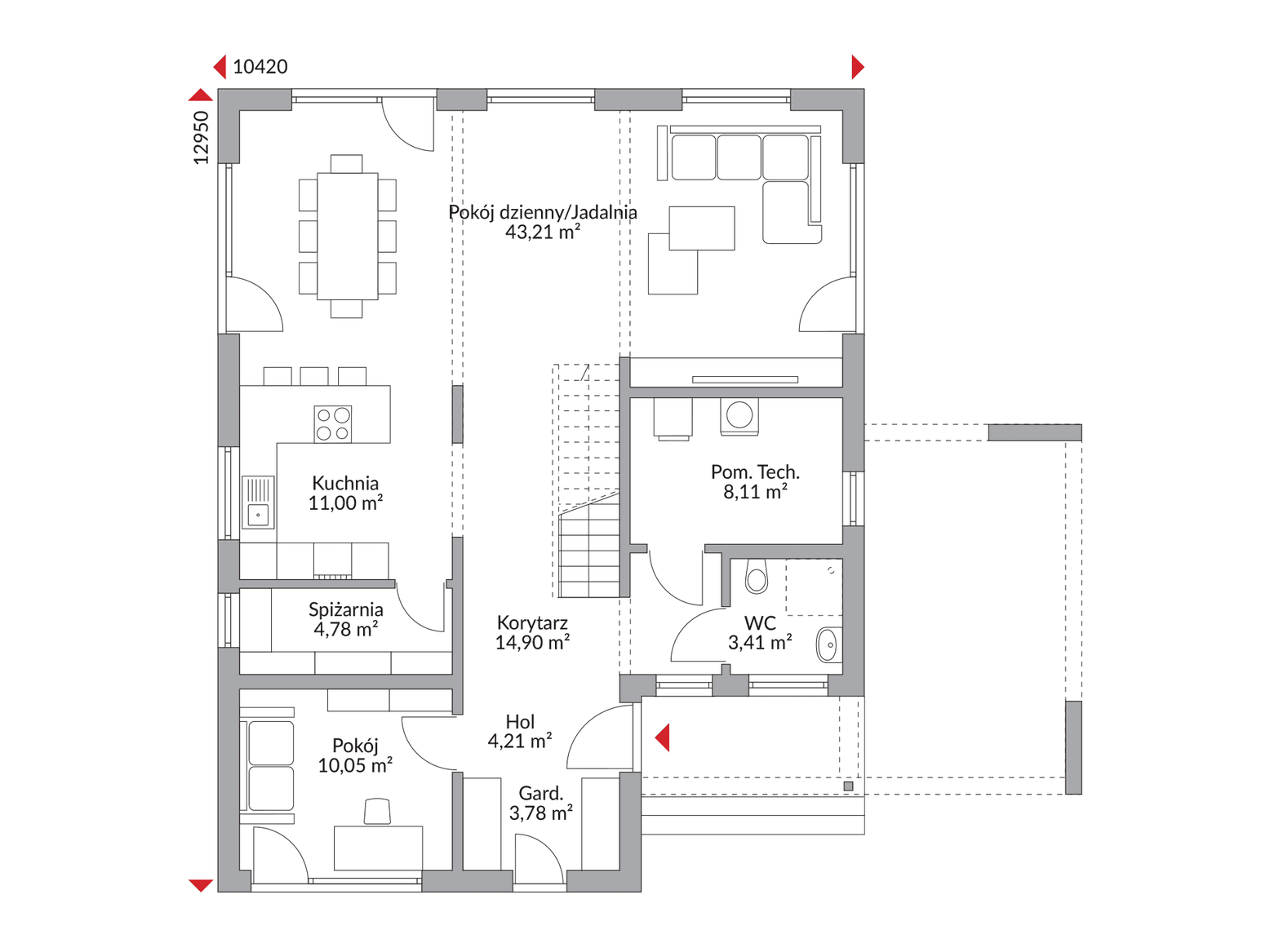
Na parterze wita Cię imponująca, otwarta strefa dzienna, gdzie przestronny salon i jadalnia tworzą idealne miejsce do wspólnego życia i przyjmowania gości. Otwarta kuchnia, być może z praktyczną spiżarnią tuż obok, stanie się sercem Twoich kulinarnych inspiracji. Całość parteru uzupełniają niezbędna toaleta dla gości oraz funkcjonalne pomieszczenie techniczne.
Piętro to Twoja prywatna strefa komfortu, oferująca aż pięć ustawnych pokoi, które możesz zaaranżować jako luksusowe sypialnie, gabinet, czy pokoje dla dzieci. Przemyślany układ tego poziomu obejmuje również dużą łazienkę oraz pojemną garderobę, która pomoże utrzymać idealny porządek.
Park 186W to dom stworzony z myślą o tych, którzy pragną czegoś więcej – połączenia elegancji z codzienną wygodą. Zaufaj doświadczeniu Danwood i stwórz dom, który będzie nie tylko piękny, ale także idealnie dopasowany do rytmu życia Twojej rodziny!
Zdjęcia mogą przedstawiać budynek z indywidualnymi zmianami.
Standard domu Today
Pełny opis budowy i specyfikacja materiałowa.

Rzuty
Kompletny plan wszystkich kondygnacji z metrażem

Dzięki temu, że wybraliśmy dom Danwood, zyskaliśmy czas dla rodziny. Nie musimy go spędzać na budowie, możemy się cieszyć naszym domem.