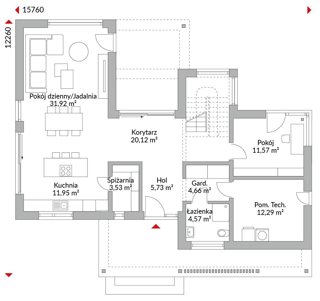
Dom dwukondygnacyjny z szerokim zadaszeniem wejściowym typu attyka i prostym wykuszem narożnym. Częściowo zadaszony taras dzięki wysunięciu dachu. Trzy pokoje na piętrze, korytarz. Główna sypialnia z łazienką en suite z wolnostojącą wanną, prysznicem, podwójną umywalką i osobną garderobą. Dodatkowa łazienka z prysznicem. Podwyższony parter z wyższymi oknami jako otwarta kuchnia, salon i jadalnia z drzwiami przesuwnymi na taras. Osobna spiżarnia. Toaleta dla gości, pomieszczenie techniczne, hol z garderobą. Dach dwuspadowy bez okapów, nachylenie 35°.
*Wizualizacje przedstawiają częściowo indywidualne wyposażenie dodatkowe.
Standard domu S-Line
Pełny opis budowy i specyfikacja materiałowa.

Rzuty
Kompletny plan wszystkich kondygnacji z metrażem

Dzięki temu, że wybraliśmy dom Danwood, zyskaliśmy czas dla rodziny. Nie musimy go spędzać na budowie, możemy się cieszyć naszym domem.