Dom dwukondygnacyjny z zadaszonym wejściem i podwyższonymi drzwiami. Dwa pokoje i studio na piętrze. Obie sypialnie z garderobą. Przeszklenia do podłogi, przestronny korytarz z miejscem do wypoczynku, łazienka z wanną, prysznicem, podwójną umywalką i schowkiem na pralkę i suszarkę. Pokój gościnny na parterze z łazienką en suite z wanną. Toaleta dla gości. Podwyższony parter z narożnym przeszkleniem jako otwarta kuchnia z narożnym oknem, salon i jadalnia z drzwiami przesuwnymi na taras. Spiżarnia, pomieszczenie techniczne, hol z garderobą. Dach kopertowy z szerokim okapem (60 cm), nachylenie 22°.
*Wizualizacje przedstawiają częściowo indywidualne wyposażenie dodatkowe.
Standard domu S-Line
Pełny opis budowy i specyfikacja materiałowa.

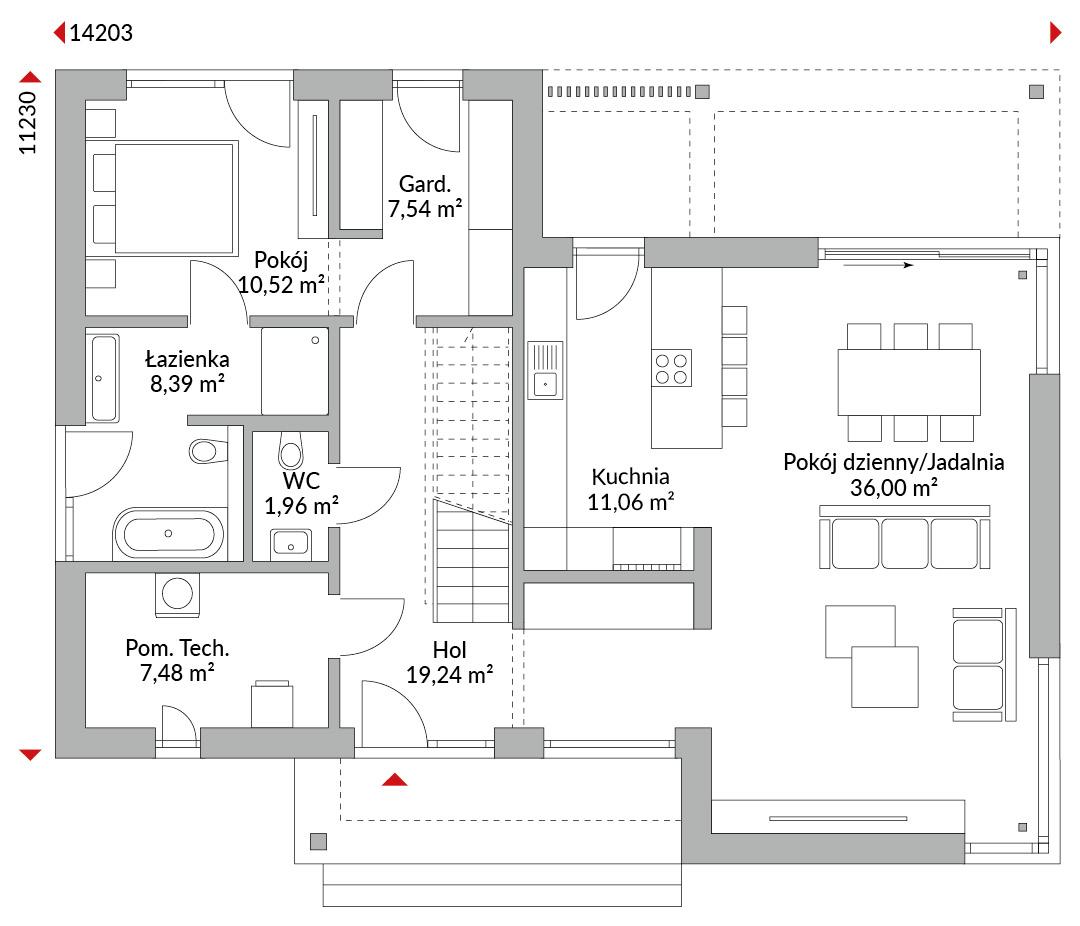
Rzuty
Kompletny plan wszystkich kondygnacji z metrażem

Dzięki temu, że wybraliśmy dom Danwood, zyskaliśmy czas dla rodziny. Nie musimy go spędzać na budowie, możemy się cieszyć naszym domem.