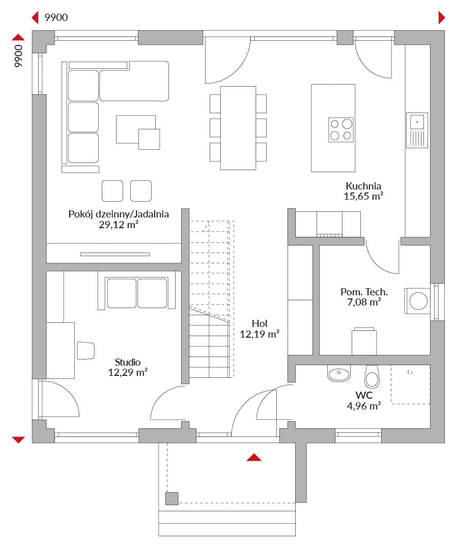
Park 161W łączy otwartą przestrzeń mieszkalną z układem, który doskonale sprawdza się na co dzień. Salon i jadalnia są przestronne i naturalnie ze sobą połączone, natomiast kuchnia została zaprojektowana jako oddzielna strefa oferująca dużo miejsca na codzienne czynności.
Na parterze znajduje się także dodatkowy pokój - idealny jako gabinet lub pokój gościnny. Praktycznie usytuowana toaleta z prysznicem oraz pomieszczenie techniczne.
Na poddaszu zaplanowano trzy funkcjonalne pokoje, przestronny hol oraz dwie garderoby, które pomagają utrzymać porządek na co dzień. Duża łazienka z wanną, prysznicem i podwójną umywalką komfortowo odpowiada na potrzeby życia rodzinnego - poranki przebiegają sprawnie, a wieczory sprzyjają wyciszeniu.
Standard domu Today
Pełny opis budowy i specyfikacja materiałowa.

Rzuty
Kompletny plan wszystkich kondygnacji z metrażem

Dzięki temu, że wybraliśmy dom Danwood, zyskaliśmy czas dla rodziny. Nie musimy go spędzać na budowie, możemy się cieszyć naszym domem.