Marzysz o stylowym, dwukondygnacyjnym domu, który idealnie łączy nowoczesny design z przytulnością i inteligentnym wykorzystaniem przestrzeni? Projekt Park 118W (o powierzchni użytkowej 113,84 m²) to dowód na to, że kompaktowe wymiary mogą iść w parze z pełnym komfortem i elegancją! Jego zgrabna bryła na planie kwadratu, kryje w sobie niezwykle funkcjonalne wnętrze.
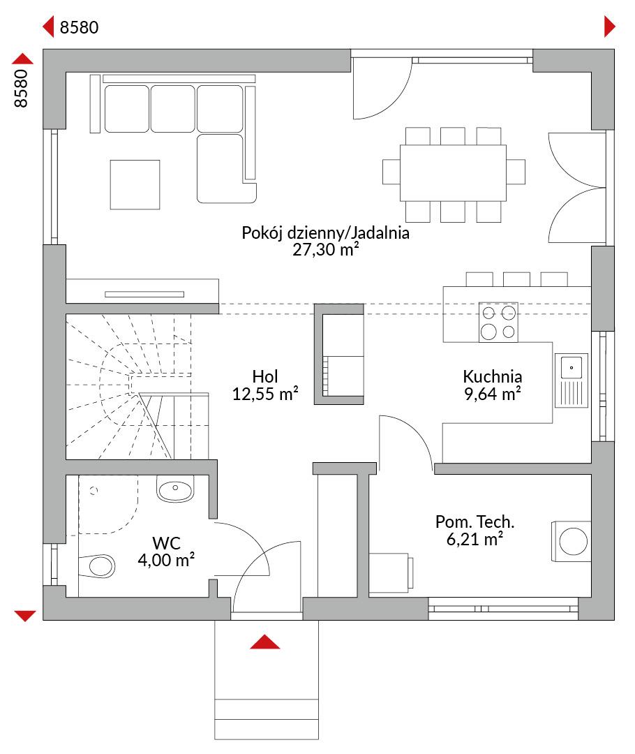
Parter domu to serce rodzinnego życia: przestronny salon płynnie łączy się tu z jadalnią oraz otwartą kuchnią, tworząc jasną i zachęcającą do wspólnego spędzania czasu strefę dzienną. To idealne miejsce na codzienne posiłki, wieczorny relaks czy spotkania z przyjaciółmi. Dodatkowo, na tym poziomie znajdziesz praktyczną toaletę dla gości oraz niezbędne pomieszczenie techniczne.
Piętro to Twoja prywatna strefa wypoczynku, gdzie czekają na Ciebie trzy komfortowe sypialnie, zapewniające idealne warunki do snu i relaksu. Funkcjonalna łazienka oraz pojemna garderoba dopełniają całości, czyniąc ten poziom niezwykle praktycznym.
Park 118W to idealny wybór dla tych, którzy szukają domu o przemyślanym układzie, pełnego naturalnego światła i oferującego wszystko, co potrzebne do wygodnego życia, bez zbędnych metrów kwadratowych. Zaufaj Danwood i stwórz swój wymarzony, kompaktowy azyl pełen stylu!
Zdjęcia mogą przedstawiać budynek z indywidualnymi zmianami.
Standard domu Today
Pełny opis budowy i specyfikacja materiałowa.

Rzuty
Kompletny plan wszystkich kondygnacji z metrażem

Dzięki temu, że wybraliśmy dom Danwood, zyskaliśmy czas dla rodziny. Nie musimy go spędzać na budowie, możemy się cieszyć naszym domem.