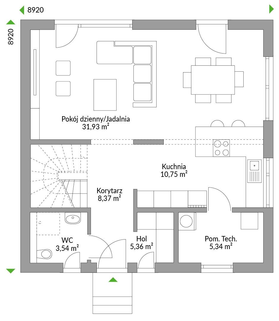
Dwie pełne kondygnacje dają swobodę w aranżacji wnętrz na piętrze, gdzie znajdują się 3 sypialnie oraz łazienka. Na parterze niezwykłe wrażenie robi połączenie salonu jadalni i otwartej kuchni – w sumie ponad 40 m.kw. Tuż przy wejściu zaplanowaliśmy garderobę, co pozwoli na łatwe zapanowanie nad butami, ubraniami czy sprzętem sportowym.
Standard domu Family
Pełny opis budowy i specyfikacja materiałowa.

Rzuty
Kompletny plan wszystkich kondygnacji z metrażem






Dzięki temu, że wybraliśmy dom Danwood, zyskaliśmy czas dla rodziny. Nie musimy go spędzać na budowie, możemy się cieszyć naszym domem.