Maksimum treści na minimalnej powierzchni oto wyzwanie dla kreatywnych inwestorów, czyli dom Family 120. Choć powierzchnia jego zabudowy jest niewielka, to przestrzeń mieszkalna na dwóch pełnych kondygnacjach obszerna i komfortowa. Pełna wysokość pomieszczeń na górnej kondygnacji oraz przestronny hol na parterze dają duże możliwości aranżacyjne.
Standard domu Family
Pełny opis budowy i specyfikacja materiałowa.

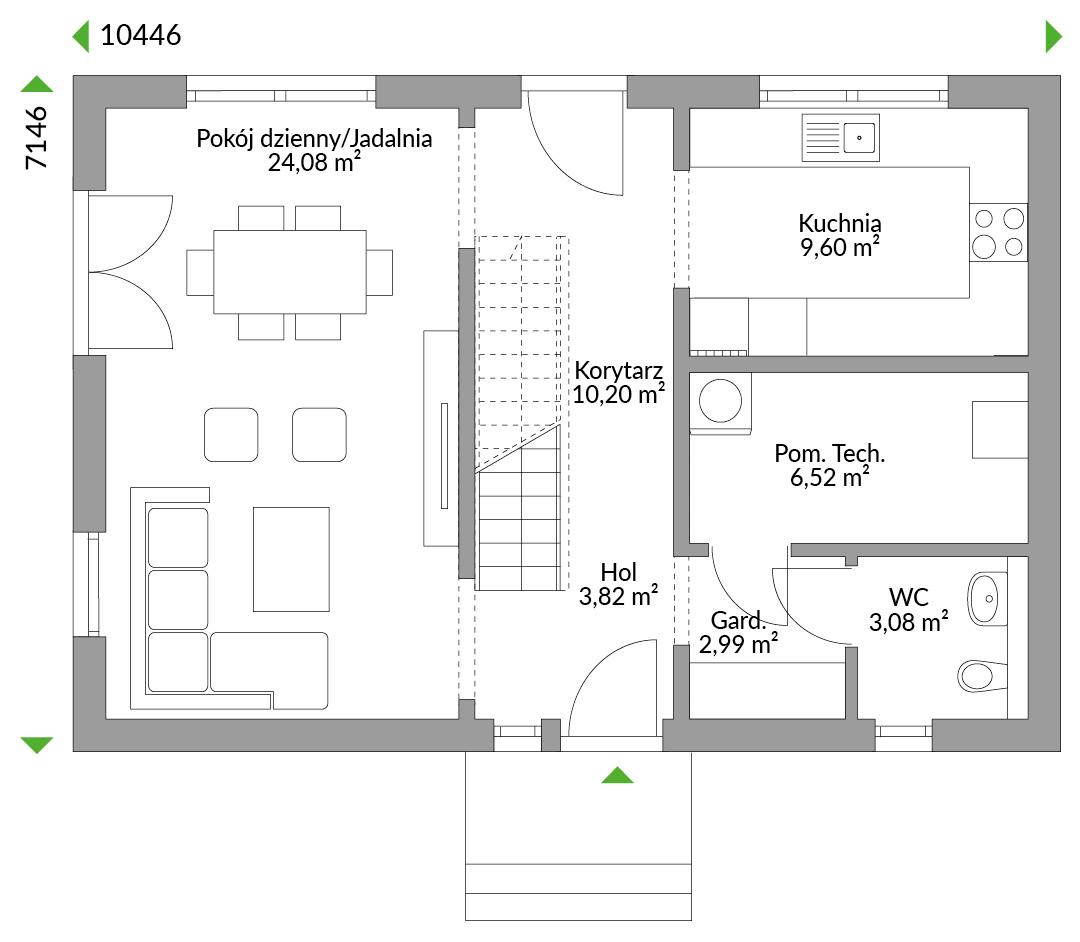
Rzuty
Kompletny plan wszystkich kondygnacji z metrażem






Dzięki temu, że wybraliśmy dom Danwood, zyskaliśmy czas dla rodziny. Nie musimy go spędzać na budowie, możemy się cieszyć naszym domem.