Poznaj projekt domu Point 184.1 (174,66 m²) – wyjątkowy dom półtorakondygnacyjny od Danwood, który łączy w sobie dynamiczny, nowoczesny design z imponującą przestrzenią i funkcjonalnością. Ten energooszczędny dom z poddaszem użytkowym, zwieńczony dachem dwuspadowym o wyrazistym nachyleniu 40° i z komfortową ścianką kolankową (1,00 m), to idealna propozycja dla rodzin ceniących sobie zarówno otwartą strefę dzienną, jak i liczne, prywatne pokoje, a także urok balkonu / zadaszonego wejścia.
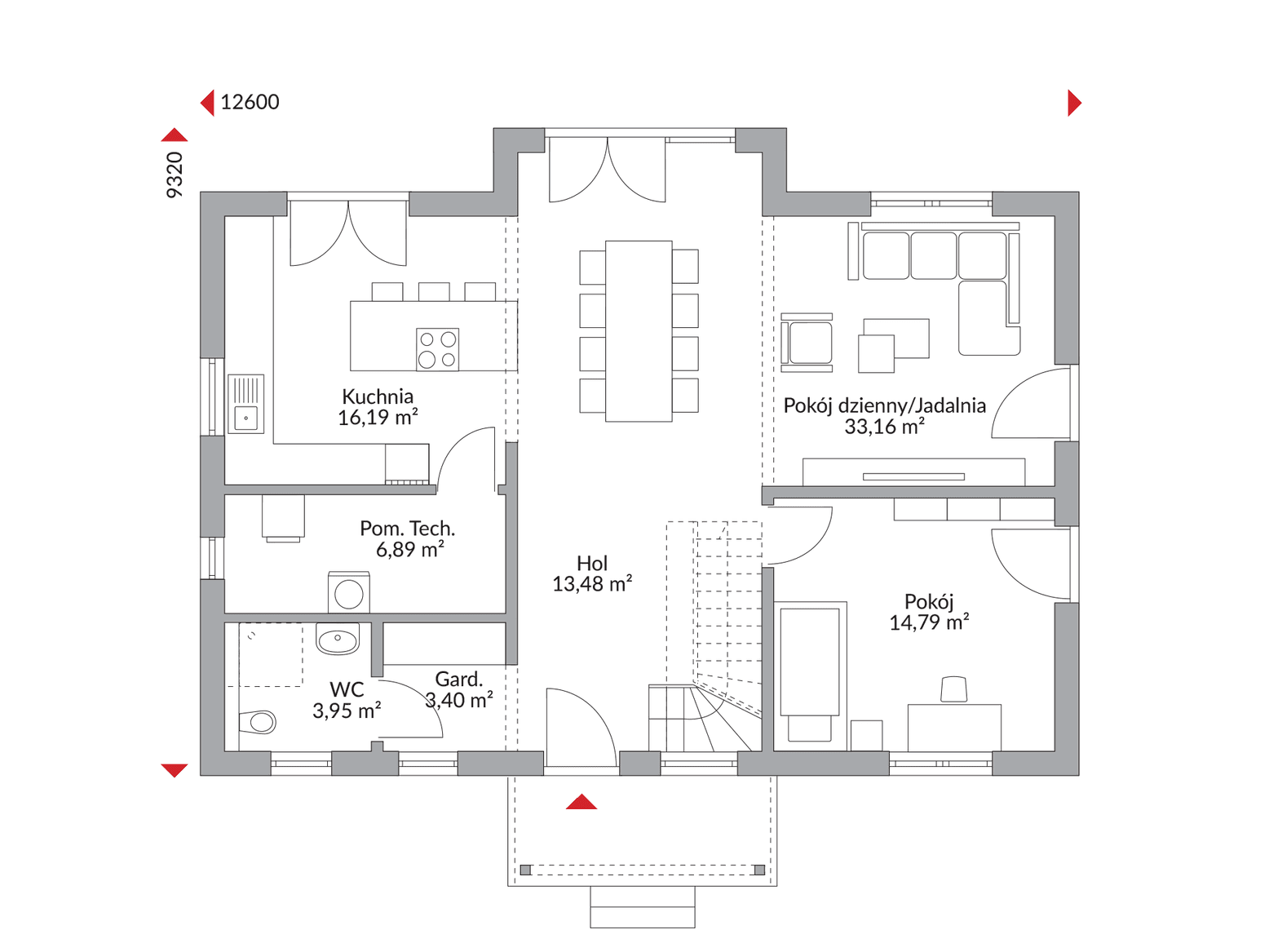
Parter domu Point 184.1 wita Cię przestronnością i światłem. Otwarta kuchnia płynnie łączy się z obszernym salonem i jadalnią, tworząc serce domu – idealne miejsce do wspólnego życia, przyjmowania gości i celebrowania każdej chwili. Przemyślany układ tego poziomu obejmuje również wygodną toaletę dla gości oraz praktyczne pomieszczenie techniczne, dostępne z holu.
Poddasze użytkowe, dzięki optymalnej wysokości ścianki kolankowej, oferuje pełnowymiarową przestrzeń z aż sześcioma pokojami, które możesz zaaranżować według własnych potrzeb. Dwie komfortowe łazienki na obu kondygnacjach zapewniają wygodę wszystkim domownikom.
Wybierając projekt domu Point 184.1, inwestujesz w gotowy projekt domu o nowoczesnym charakterze od Danwood, lidera w produkcji domów prefabrykowanych. Ten imponujący dom z poddaszem i balkonem to nie tylko przemyślany układ i duża przestrzeń, ale także obietnica komfortowego życia w domu, który wyróżnia się stylem, jakością i dbałością o każdy detal.
Co wyróżnia projekt Point 184.1?
Standard domu Today
Pełny opis budowy i specyfikacja materiałowa.

Rzuty
Kompletny plan wszystkich kondygnacji z metrażem

Dzięki temu, że wybraliśmy dom Danwood, zyskaliśmy czas dla rodziny. Nie musimy go spędzać na budowie, możemy się cieszyć naszym domem.