Odkryj projekt domu Point 174.1 (170,23 m²) – imponującą propozycję od Danwood, gdzie nowoczesna architektura łączy się z funkcjonalnością, potwierdzoną energooszczędnością i niezwykle przestronnym poddaszem. Ten dom półtorakondygnacyjny, zwieńczony dachem dwuspadowym o dynamicznym nachyleniu 35° i z wyjątkowo wysoką ścianką kolankową (aż 1,75 m), to idealne rozwiązanie dla rodzin ceniących sobie zarówno otwartą przestrzeń dzienną, jak i liczne, pełnowymiarowe pokoje na piętrze, a także komfort dwóch łazienek.
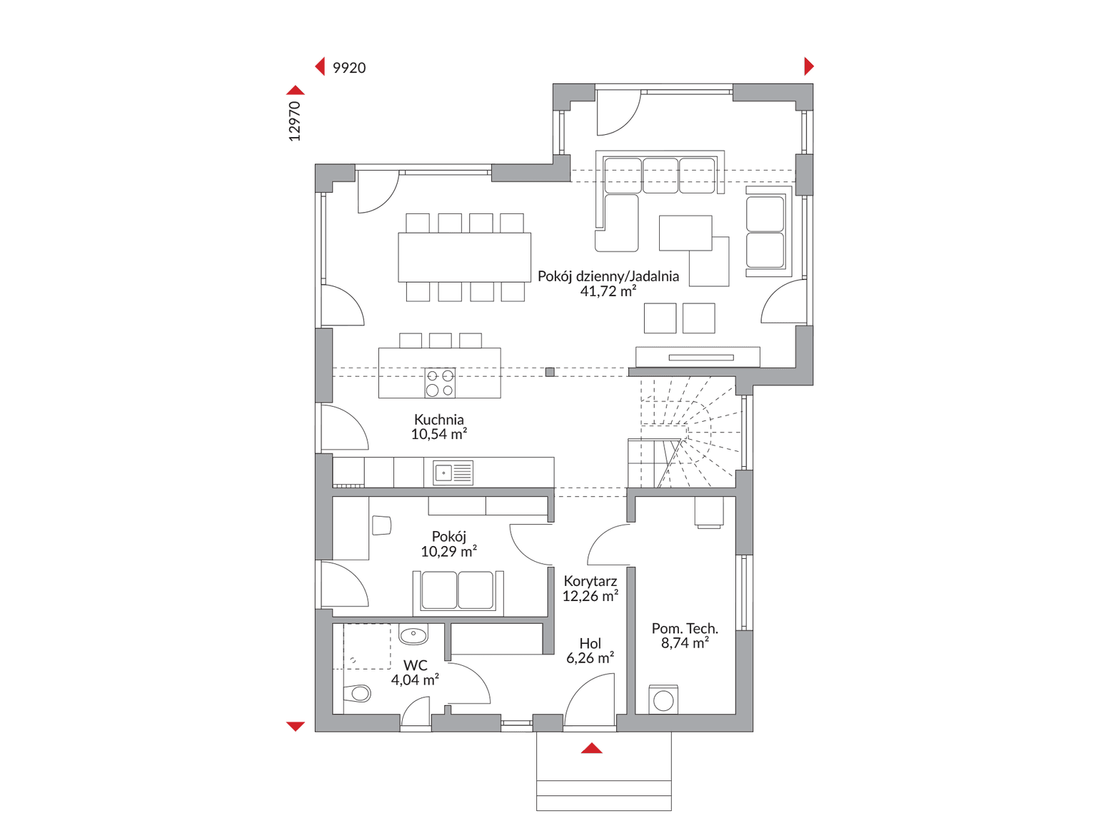
Parter domu Point 174.1 wita Cię przestronnym holem i korytarzem. Sercem domu jest jasna, otwarta kuchnia, która naturalnie łączy się z obszernym salonem i jadalnią, tworząc idealne miejsce do wspólnego życia, przyjmowania gości i celebrowania każdej chwili. Funkcjonalność tego poziomu podkreślają również wygodna toaleta dla gości oraz niezbędne pomieszczenie techniczne.
Poddasze, dzięki imponującej wysokości ścianki kolankowej, oferuje pełnowymiarową, niezwykle ustawną przestrzeń z trzema pokojami, które możesz elastycznie zaaranżować jako komfortowe sypialnie, gabinet, czy pokoje dla dzieci, dopasowując je do rytmu życia Twojej rodziny. Niezwykłym atutem tego projektu domu jest obecność dwóch łazienek (WC na parterze i pełna łazienka na piętrze), co znacznie podnosi komfort codziennego użytkowania dla wszystkich domowników.
Wybierając projekt domu Point 174.1, inwestujesz w gotowy projekt domu od Danwood, który wyróżnia się nie tylko nowoczesnym designem, ale przede wszystkim inteligentnym planowaniem i maksymalizacją przestrzeni użytkowej. To dom z wysokim poddaszem dla świadomych klientów, ceniących jakość, styl i rozwiązania, które realnie wpływają na komfort życia.
Co wyróżnia projekt Point 174.1?
Zdjęcia moga przedstawiać budynek z indywidualnymi zmianami.
Standard domu Today
Pełny opis budowy i specyfikacja materiałowa.

Rzuty
Kompletny plan wszystkich kondygnacji z metrażem

Dzięki temu, że wybraliśmy dom Danwood, zyskaliśmy czas dla rodziny. Nie musimy go spędzać na budowie, możemy się cieszyć naszym domem.