Marzysz o domu, który łączy w sobie elegancję z imponującą przestrzenią i funkcjonalnością idealnie dopasowaną do potrzeb Twojej rodziny? Projekt Park 180W od Danwood (o powierzchni użytkowej 175,9 m²) to kwintesencja nowoczesnego życia na dwóch poziomach! Jego piękna, dwukondygnacyjna bryła, zwieńczona dachem o łagodnym nachyleniu 22°, obiecuje wnętrze pełne światła i przemyślanych rozwiązań.
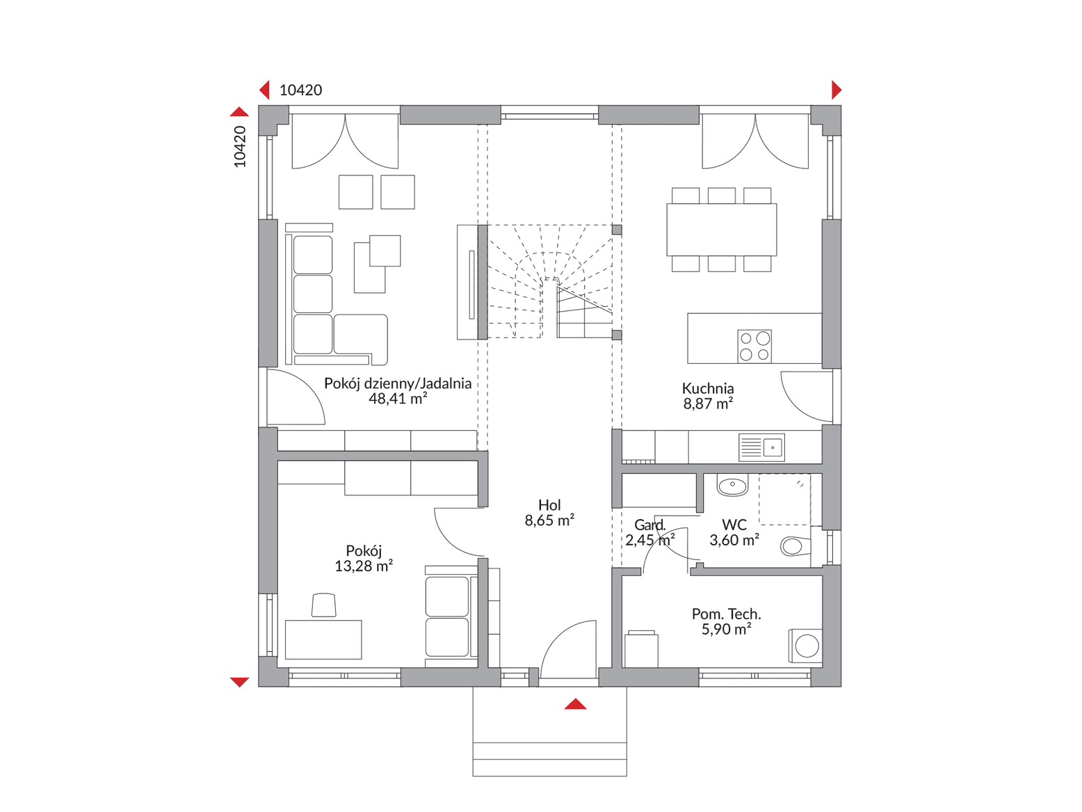
Na parterze wita Cię zachwycająco przestronna strefa dzienna, gdzie salon i jadalnia tworzą otwartą, pełną życia przestrzeń, idealną do wspólnego relaksu i celebrowania chwil z bliskimi. Otwarta kuchnia sprzyja integracji i kulinarnym pasjom, a całość parteru uzupełniają praktyczna toaleta dla gości oraz niezbędne pomieszczenie techniczne.
Piętro to królestwo prywatności, oferujące aż pięć ustawnych pokoi, które możesz zaaranżować jako komfortowe sypialnie, gabinet, czy pokój hobby. Przemyślany układ tego poziomu obejmuje również dużą, rodzinną łazienkę oraz aż trzy pojemne garderoby, które pomogą utrzymać idealny porządek i zapewnią komfort każdemu domownikowi.
Park 180W to dom, który nie tylko zachwyca wyglądem, ale także dba o Twój portfel dzięki energooszczędnym rozwiązaniom Danwood. Stwórz swój wymarzony, przestronny azyl, w którym każdy dzień będzie pełen radości i komfortu!
Zdjęcia mogą przedstawiać budynek z indywidualnymi zmianami.
Standard domu Today
Pełny opis budowy i specyfikacja materiałowa.

Rzuty
Kompletny plan wszystkich kondygnacji z metrażem

Dzięki temu, że wybraliśmy dom Danwood, zyskaliśmy czas dla rodziny. Nie musimy go spędzać na budowie, możemy się cieszyć naszym domem.