Marzysz o domu, który łączy w sobie elegancki, ponadczasowy styl z funkcjonalnością i przestrzenią idealnie dopasowaną do potrzeb aktywnej rodziny? Projekt Park 156W od Danwood (o powierzchni użytkowej 152,51 m²) to kwintesencja komfortowego życia na dwóch poziomach! Jego piękna, dwukondygnacyjna bryła, prawdopodobnie zwieńczona klasycznym dachem kopertowym o subtelnym nachyleniu 22°, zaprasza do wnętrza pełnego światła, ciepła i przemyślanych rozwiązań.
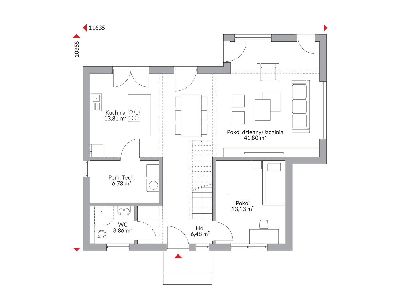
Na parterze tego wyjątkowego domu znajduje się imponująca, otwarta strefa dzienna, gdzie salon i jadalnia tworzą serce domu – miejsce spotkań, relaksu i rodzinnych uroczystości. Otwarta kuchnia sprzyja integracji i wspólnemu gotowaniu, a jej funkcjonalność doceni każdy domowy szef kuchni. Całość parteru uzupełniają praktyczna toaleta dla gości oraz niezbędne pomieszczenie techniczne.
Piętro to strefa prywatności i odpoczynku, oferująca aż sześć ustawnych pokoi, które z łatwością zaaranżujesz jako komfortowe sypialnie (prawdopodobnie cztery lub pięć, w zależności od potrzeb), gabinet, czy pokój zabaw dla dzieci. Duża, rodzinna łazienka oraz pojemna garderoba zapewniają komfort i wygodę wszystkim domownikom.
Park 156W to nie tylko piękny i przestronny dom, ale także inwestycja w energooszczędne życie i najwyższą jakość wykonania, gwarantowaną przez Danwood. Stwórz swój wymarzony azyl, w którym każdy dzień będzie pełen radości, komfortu i rodzinnego ciepła!
Zdjęcia mogą przedstawiać budynek z indywidualnymi zmianami.
Standard domu Today
Pełny opis budowy i specyfikacja materiałowa.

Rzuty
Kompletny plan wszystkich kondygnacji z metrażem

Dzięki temu, że wybraliśmy dom Danwood, zyskaliśmy czas dla rodziny. Nie musimy go spędzać na budowie, możemy się cieszyć naszym domem.