Szukasz domu, który idealnie łączy kompaktowe wymiary z komfortem dwupoziomowego życia i eleganckim wyglądem? Projekt Park 131W od Danwood (o powierzchni użytkowej 126,82 m²) to doskonała propozycja dla tych, którzy cenią sobie przemyślane rozwiązania i nowoczesną estetykę! Jego zgrabna, dwukondygnacyjna bryła, kryje wnętrze pełne światła i praktycznych udogodnień.
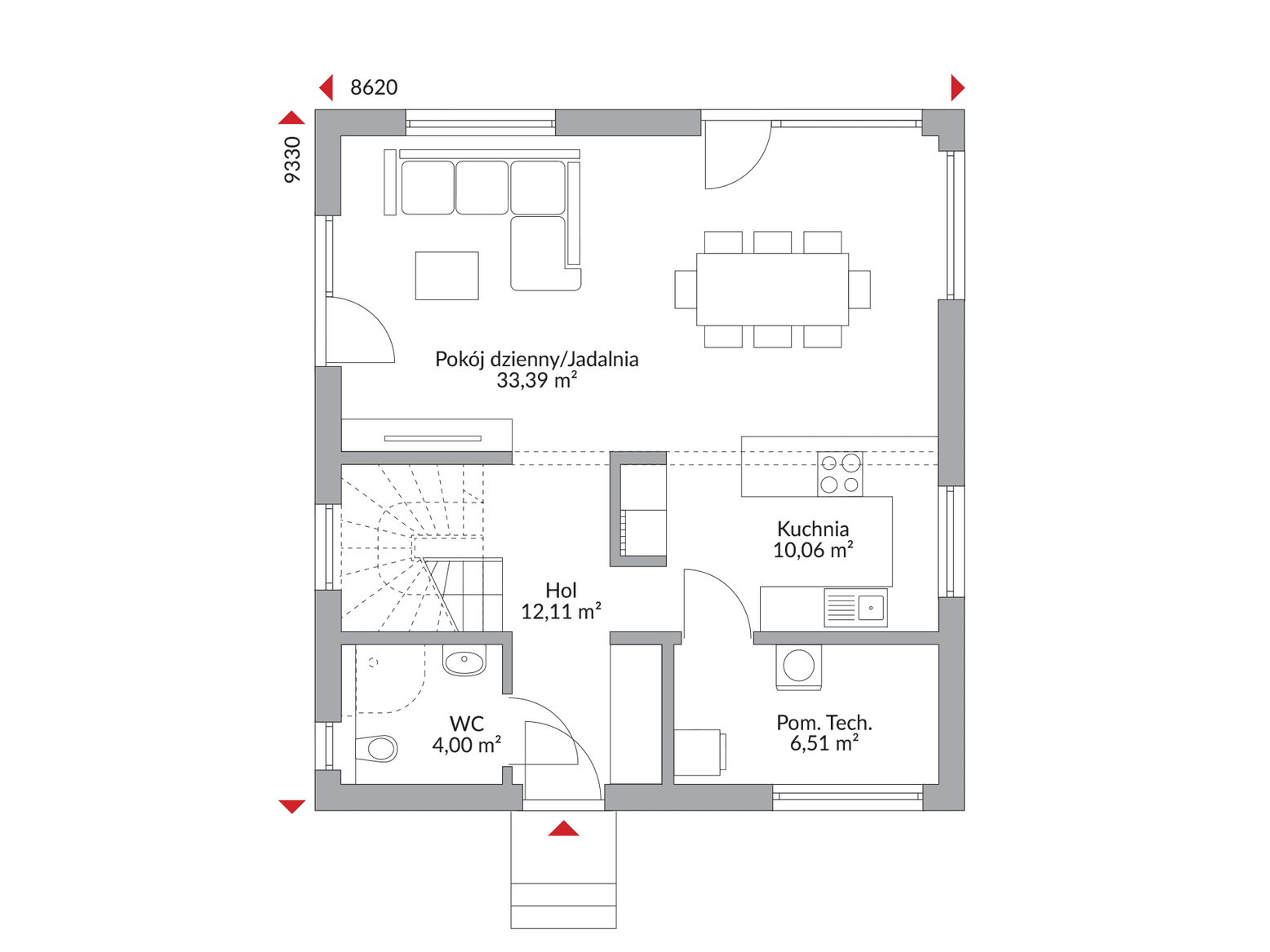
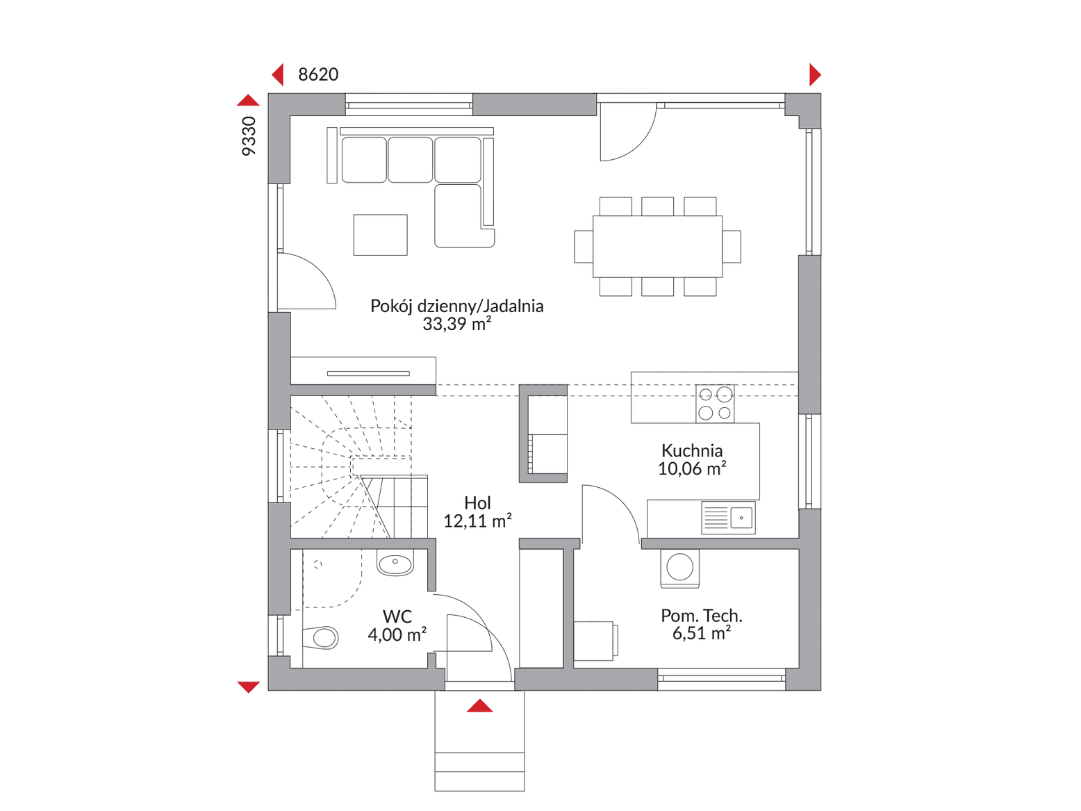
Parter tego uroczego domu wita Cię przestronną i jasną strefą dzienną, gdzie salon, jadalnia oraz otwarta kuchnia tworzą harmonijną przestrzeń do wspólnego życia. To idealne miejsce na rodzinne posiłki, relaks po dniu pełnym wrażeń czy spotkania w gronie przyjaciół. Na tym poziomie znajdziesz również wygodną toaletę dla gości oraz niezbędne pomieszczenie techniczne, które ułatwi codzienną organizację.
Piętro to Twoja prywatna strefa odpoczynku, oferująca aż cztery ustawne pokoje. Możesz je zaaranżować jako komfortowe sypialnie dla całej rodziny, domowe biuro czy pokój hobby, dopasowując przestrzeń do swoich indywidualnych potrzeb. Całość dopełnia duża, funkcjonalna łazienka.
Park 131W to dowód na to, że nawet w domu o nieco mniejszym metrażu można cieszyć się pełnią komfortu i elegancji. Zaufaj jakości Danwood i stwórz swój idealny dom,
Zdjęcia mogą przedstawiać budynek z indywidualnymi zmianami.
Standard domu Today
Pełny opis budowy i specyfikacja materiałowa.

Rzuty
Kompletny plan wszystkich kondygnacji z metrażem

Dzięki temu, że wybraliśmy dom Danwood, zyskaliśmy czas dla rodziny. Nie musimy go spędzać na budowie, możemy się cieszyć naszym domem.